CF31 3LW - 3 bedroom semidetached house for sale in Priory Close, Brid…

View on Property Piper

3 bedroom semi-detached house for sale in Priory Close, Bridgend, Bridgend County. CF31 3LW, CF31

Summary - 11 Priory Close CF31 3LW

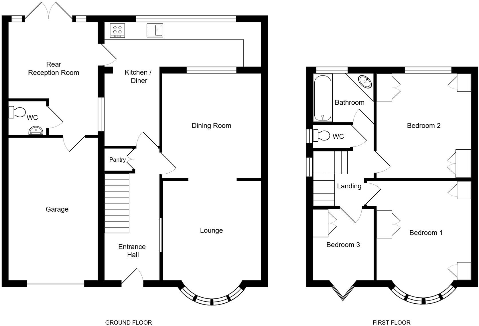
3 bed 1 bath Semi-Detached

**Standout Features:**
- Three spacious bedrooms
- Three reception rooms, including a versatile open plan lounge/dining area
- Kitchen/diner with ample space
- Integral garage with roller door for convenience
- Well-maintained garden with green space access
- Chain-free sale for quick move-in

**Summary:**
Discover this charming three-bedroom semi-detached home in a desirable Bridgend neighborhood, perfect for families and entertaining. This well-presented property offers an inviting open plan lounge/dining area that flows seamlessly into the kitchen/diner, creating a bright and functional living space. A separate second reception room overlooks the manicured garden, providing a tranquil retreat for relaxation.

The property includes two WCs, ensuring convenience for family life, and the integral garage adds valuable storage and parking options. Enjoy outdoor living in the spacious garden, which features rear access to additional green space. With no onward chain, this home is ready for a swift move, making it an excellent opportunity for first-time buyers or those looking to settle into a vibrant community. Don’t miss out on this exceptional find!

Property Details

Brochure Descriptions

Image Descriptions

Floorplan Description

Rooms

Textual Property Features

Detected Visual Features

EPC Details

Nearest Bars And Restaurants

,,,,}

Nearest General Shops

,,}

Nearest Grocery shops

,,}

Nearest Supermarkets

,,}

Nearest Religious buildings

,,}

Nearest Medical buildings

,,,}

Nearest Airports

}

Nearest Leisure Facilities

,,,,}

Nearest Tourist attractions

,,}

Nearest Train stations

,,,,}

Nearest Bus stations and stops

,,,,}

Nearest Hotels

,,}

Tags

Local Market Stats

AirBnB Data

Similar Properties

Meta

High Res Images

Compatible Images

Low res Images

Thumbnails

Raw Images

High Res Floorplan Images

Compatible Floorplan Images

Low res Floorplan Images

FloorplanImages Thumbnail

Raw Floorplan Images