Blank-canvas three-bed close to town centre and schools.
Chain-free three-bedroom mid-terrace with generous room sizes
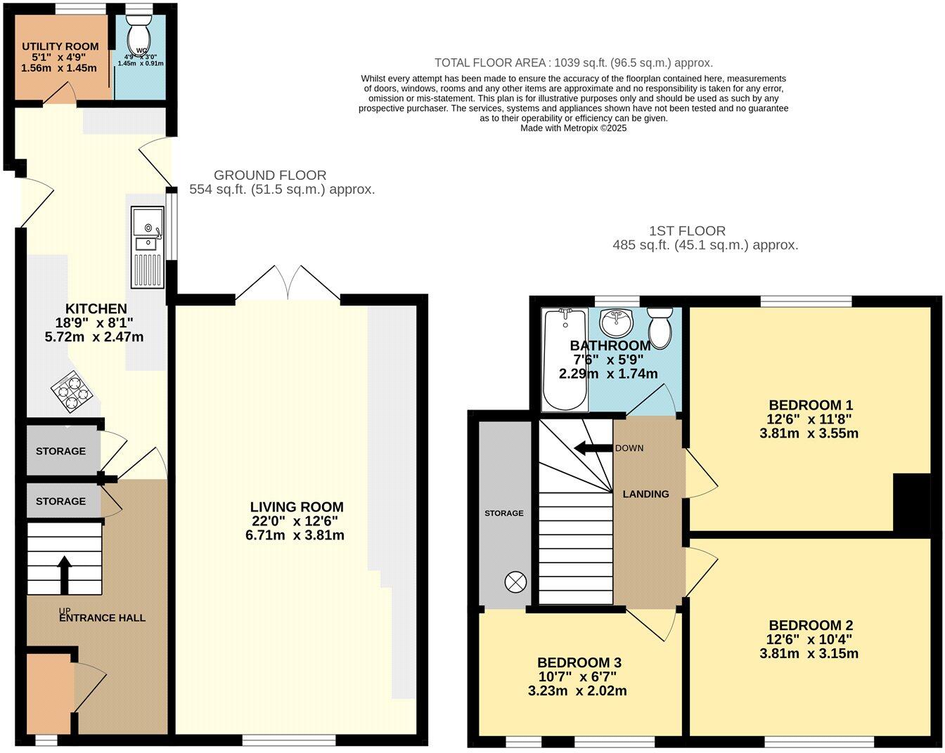
This chain-free mid-terrace three-bedroom house in Mildenhall offers generous room proportions and clear scope to add value. The extended layout includes a long lounge/diner with French doors, a sizeable kitchen with separate utility and WC, and three bedrooms — the principal with fitted wardrobes. Practical features such as UPVC double glazing, gas central heating and driveway parking make it liveable while works are planned.
The property is presented as a blank canvas: finishes are dated and the house needs renovation throughout to realise its potential. Notable external items include a private rear garden with three outbuildings, artificial turf, a disused pond and pedestrian rear access — useful for storage but requiring attention or removal. Interior decoration and some fixtures (flooring, bathrooms, kitchen) will need updating.
Positioned within walking distance of Mildenhall town centre, local schools and amenities, this freehold home suits buyers wanting space in a well-connected market town. For investors or DIY buyers it represents refurbishment potential with decent plot size and off-street parking. For families, room sizes and proximity to schools are strengths, though planned improvement work should be budgeted.
Material negatives are straightforward: the property needs renovation, the pond is unused, and the area sits in a more deprived local profile which may affect resale timescales. There are no known flood risks; broadband and mobile signal are strong and council tax is low, which helps running costs while works are completed.
3 bedroom terraced house for sale in Peterhouse Close, Mildenhall, Bury St. Edmunds, Suffolk, IP28 — £190,000 • 3 bed • 1 bath • 900 ft²
4 bedroom end of terrace house for sale in Downing Close, Mildenhall, Bury St. Edmunds, Suffolk, IP28 — £220,000 • 4 bed • 2 bath • 906 ft²
3 bedroom end of terrace house for sale in Downing Close, Mildenhall, Bury St. Edmunds, IP28 — £225,000 • 3 bed • 2 bath • 862 ft²
3 bedroom end of terrace house for sale in Bridge Farm Close, Mildenhall, Bury St. Edmunds, Suffolk, IP28 — £275,000 • 3 bed • 3 bath • 698 ft²
3 bedroom end of terrace house for sale in Newnham Close, Mildenhall, BURY ST. EDMUNDS, IP28 — £180,000 • 3 bed • 1 bath • 797 ft²
3 bedroom semi-detached house for sale in Raven Close, Mildenhall, IP28 — £265,000 • 3 bed • 2 bath • 967 ft²


































































