Spacious Victorian detached home near Buckie town centre — ideal for renovation and family living.
Traditional sandstone detached Victorian house with period features retained
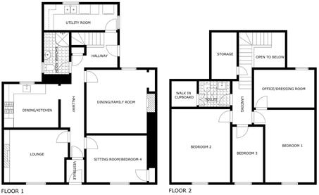
Spacious reception rooms plus attic/gable — possible fourth bedroom or office
Double glazing and mains gas central heating in place
Enclosed rear garden, shed, side gate; medium-size, low-maintenance plot
Sold needing modernisation — updates to finishes and carpets required
Home Report valuation £180,000; asking price £179,000
Located close to Buckie town centre, shops, schools and transport
Local area shows higher deprivation indicators — consider resale/let risk
Set on a quiet street in coastal Buckie, this detached Victorian sandstone home offers genuine family space and period character. The property has retained original features such as panelled internal doors and fireplace surrounds, with spacious reception rooms across two storeys plus attic/gable space that could serve as additional bedrooms, office or storage.
The house benefits from double glazing and mains gas central heating and sits close to the town centre, schools, shops and transport links — a practical location for growing families or buy-to-let purchasers. The enclosed rear garden with shed and side access provides a private outdoor area that is easy to maintain.
The property is sold as needing modernisation: some updating of finishes, carpeting and fittings is required to bring it up to contemporary standards. The Home Report valuation is £180,000 and the asking price is £179,000. Buyers should note the local area is classified as an ageing, self-sufficient neighbourhood with higher deprivation indicators.
This is a straightforward opportunity for someone wanting a character home in a coastal town, with scope to increase value through renovation and reconfiguration. Practical benefits include good broadband speeds and average mobile signal, while there is no recorded flood risk.
4 bedroom detached house for sale in 39 Gordon Street, Buckie, AB56 1JJ, AB56 — £190,000 • 4 bed • 1 bath
4 bedroom detached house for sale in Benavon, Cluny Terrace, Buckie, AB56 1JL, AB56 — £195,000 • 4 bed • 1 bath
3 bedroom semi-detached house for sale in Kingsmead, 17 West Cathcart Street, Buckie, AB56 1PP, AB56 — £195,000 • 3 bed • 2 bath
4 bedroom end of terrace house for sale in 24 Land Street, Buckie, AB56 1QS, AB56 — £215,000 • 4 bed • 2 bath
3 bedroom semi-detached house for sale in 58 Mill Crescent, Buckie, AB56 1LD, AB56 — £179,000 • 3 bed • 1 bath
2 bedroom terraced house for sale in 3 East Cathcart Street, Buckie, AB56 1PJ, AB56 — £89,000 • 2 bed • 1 bath


















































































































