Period mid-terrace for renovation — prime for investors or buyers wanting to add value..
- Victorian mid-terrace with period character features
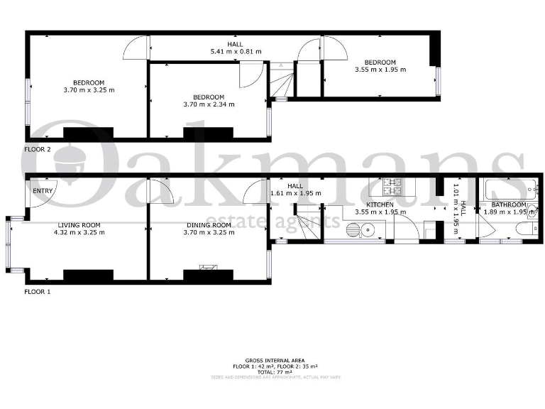
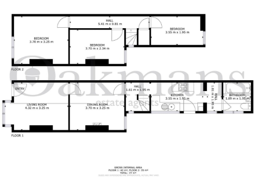
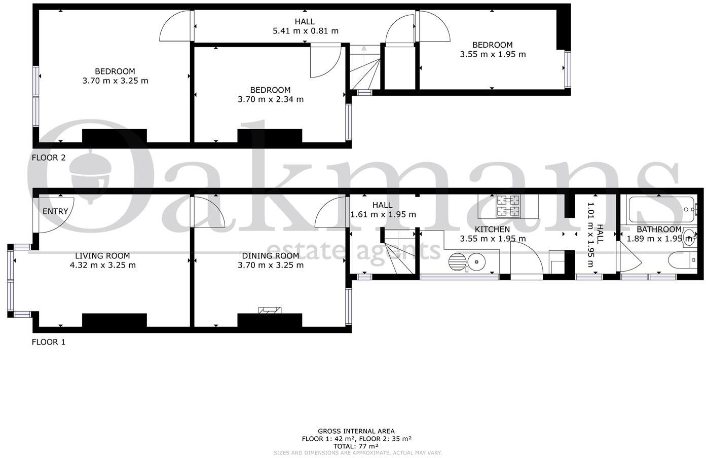
- Three bedrooms over two storeys, 829 sq ft
- Substantial rear garden but overall small plot
- Needs full modernisation; heating issues noted
- Freehold; no flood risk
- Close to Bournville station and local amenities
- Area classified as deprived; crime levels high
- Fast broadband and excellent mobile signal
A classic Victorian mid-terrace in the heart of Stirchley offering clear scope for refurbishment and value uplift. The three-bedroom layout across two storeys provides practical living space and generous natural light in most rooms. At 829 sq ft with a substantial rear garden, the property suits buyers wanting to modernise and reconfigure to current standards.
This is a renovation project: the house is sold freehold and currently needs updating throughout, including heating and general modernisation. Properties like this attract buyers looking to add value through cosmetic and structural improvements. Excellent mobile signal and fast broadband support home working or short-term lettings once upgraded.
Location is a strong selling point — short walk to Bournville station, local shops, cafes and amenities, with several well-rated schools nearby including an outstanding secondary. Be candid about the local context: the immediate area is in a deprived bracket and recorded high crime levels, so consider security and local authority context when budgeting improvements.
Suitable for investors or hands-on buyers aiming to refurbish and sell or let, this mid-terrace gives scope to create a contemporary family home or rental unit. Viewings recommended to assess layout and renovation cost. No flood risk and freehold tenure are practical advantages for future works.
3 bedroom end of terrace house for sale in Ash Tree Road, Stirchley, Birmingham, West Midlands, B30 — £260,000 • 3 bed • 1 bath • 1098 ft²
2 bedroom terraced house for sale in Charlotte Road, Strichley, Birmingham, B30 — £275,000 • 2 bed • 1 bath • 851 ft²
3 bedroom end of terrace house for sale in Dell Road, Birmingham, West Midlands, B30 — £260,000 • 3 bed • 1 bath • 783 ft²
2 bedroom end of terrace house for sale in Charlotte Road, Stirchley, Birmingham B30 2BS, B30 — £235,000 • 2 bed • 1 bath
3 bedroom end of terrace house for sale in Mary Vale Road, Birmingham, West Midlands, B30 — £300,000 • 3 bed • 1 bath • 954 ft²
2 bedroom terraced house for sale in Warren Road, Stirchley, Birmingham, B30 2NY, B30 — £240,000 • 2 bed • 1 bath


































































