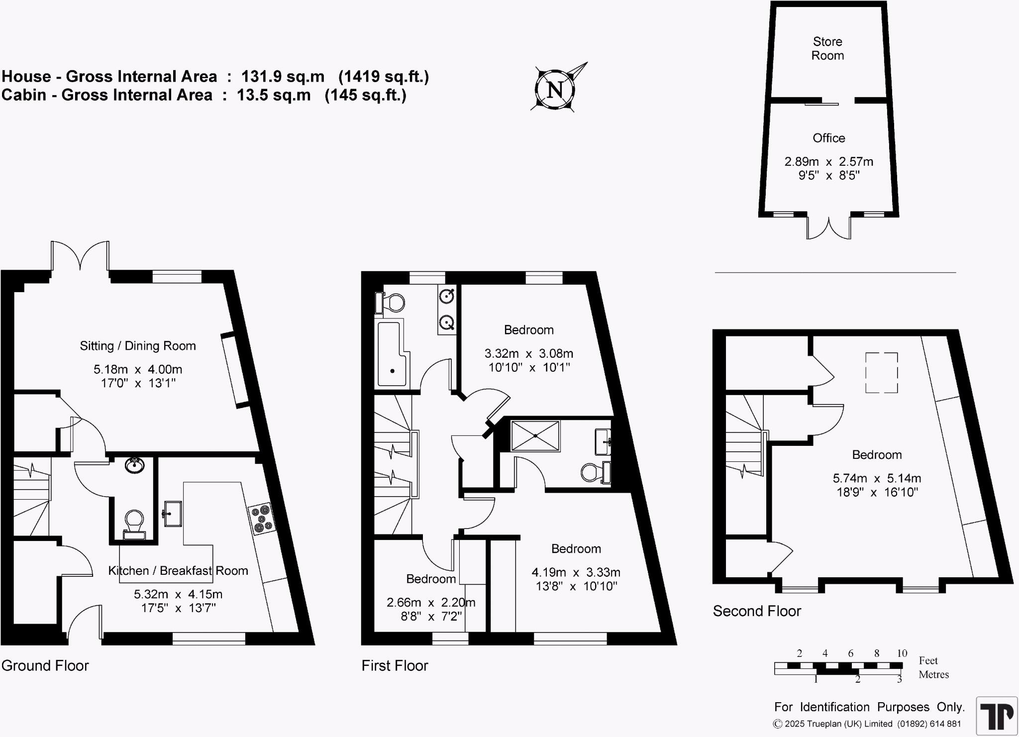
Move-in ready family home with modern kitchen, garden office and two parking spaces..
Four double bedrooms plus en-suite; family bathroom
Newly renovated throughout with modern kitchen and fixtures
Large reception room suitable for family living
Landscaped garden with outbuilding usable as home office
Two off-road parking spaces; freehold tenure
Small plot size; limited outdoor privacy
Council tax above average for the area
Local crime levels higher than nearby neighbourhoods
This newly renovated four-bedroom terraced home on Abbey Drive offers spacious, contemporary family living across three floors. The modern fitted kitchen, large reception room and landscaped garden with a dedicated outbuilding/office create flexible space for work, play and entertaining.
Practical benefits include two off-road parking spaces, freehold tenure and proximity to a mix of well-regarded local schools (including an Outstanding secondary). The house is well presented throughout and finished with quality fittings, ready for immediate occupation.
Buyers should be aware of practical drawbacks: the plot is relatively small, council tax is above average and the local area records higher crime levels than surrounding neighbourhoods. Overall this is a strong option for families seeking move-in condition accommodation in a convenient suburban location.
4 bedroom terraced house for sale in Abbey Drive, Bexley Park, Kent, DA2 — £570,000 • 4 bed • 2 bath • 1371 ft²
3 bedroom terraced house for sale in Abbey Drive, Bexley Park, DA2 — £575,000 • 3 bed • 2 bath • 1523 ft²
4 bedroom terraced house for sale in Anvil Terrace, Dartford, Kent, DA2 — £600,000 • 4 bed • 3 bath • 1603 ft²
4 bedroom terraced house for sale in Stone House Lane, Dartford, Kent, DA2 — £475,000 • 4 bed • 3 bath • 1181 ft²
4 bedroom terraced house for sale in Anvil Terrace, Bexley Park, DA2 — £550,000 • 4 bed • 3 bath • 1430 ft²
4 bedroom detached house for sale in Monterey Close, Bexley, DA5 — £795,000 • 4 bed • 2 bath • 1473 ft²






















































































































