**Standout Features:**
- **4 Bedrooms:** Ideal for families or shared living.
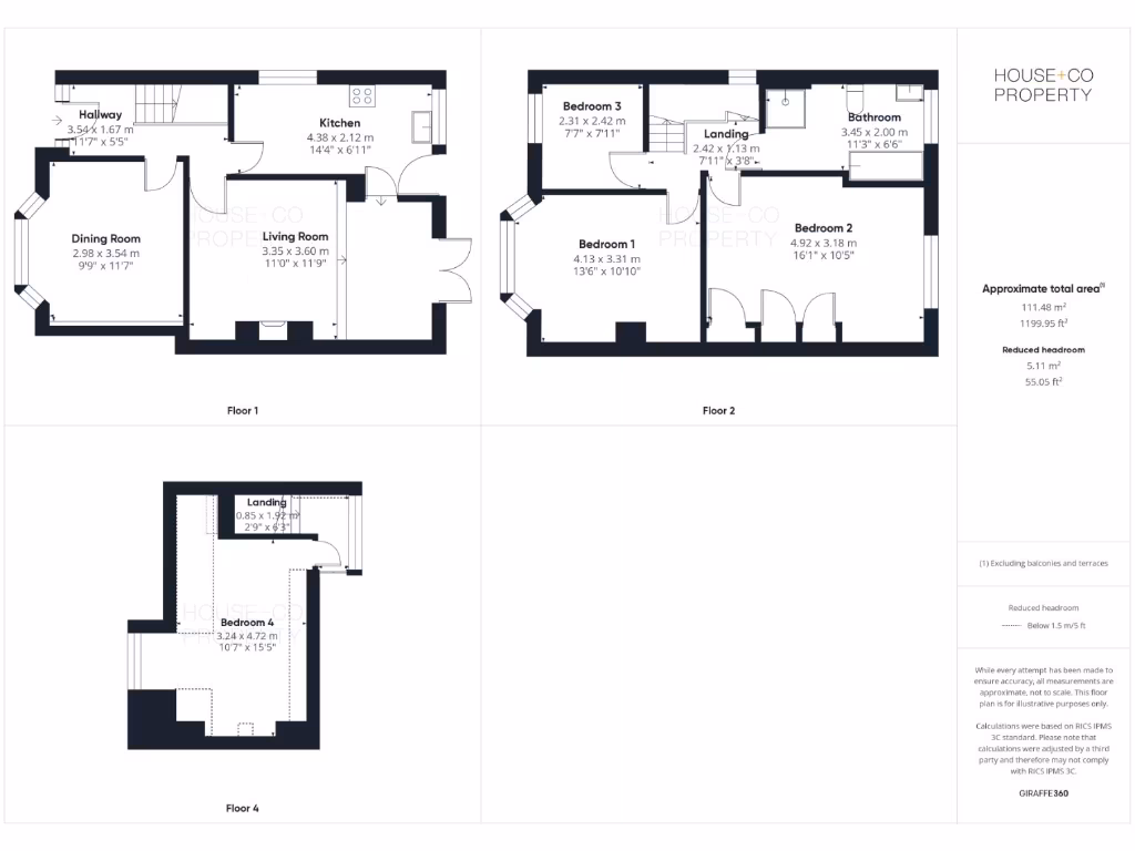
- **Extended Layout:** Arranged over three floors, offering generous living space.
- **Modern Kitchen:** Stylish and efficient with access to dining and lounge areas.
- **Pleasant Garden:** Lawn and patio for outdoor enjoyment, plus garage with lane access.
- **Cul-de-Sac Location:** Quiet and family-friendly neighborhood.
- **Proximity to Amenities:** Close to Kingswood shops and parks.
This extended 4-bedroom semi-detached home is a perfect opportunity for families seeking comfort and space in a coveted cul-de-sac. The property boasts well-proportioned rooms across three inviting floors, featuring a spacious lounge, dining room, and a modern kitchen—ideal for both casual cooking and entertaining. The standout second bedroom offers size typically unseen in similar homes, while the upper level reveals a private fourth bedroom, perfect for guests or as a home office.
Well-maintained with modern gas central heating and double glazing for comfort, the home also features a delightful lawned rear garden, providing a serene outdoor retreat. Enjoy the security and tranquility of a neighborhood close to Kingswood's shopping and amenities. While some may find the overall property size average for spacious living, the true charm lies in its well-designed layout and family-friendly environment. Don’t miss out on this desirable family home; opportunities like this are rare in the market!
4 bedroom semi-detached house for sale in The Reddings, Kingswood, Bristol, BS15 — £425,000 • 4 bed • 2 bath • 1227 ft²
4 bedroom end of terrace house for sale in Deerswood, Kingswood, BS15 — £400,000 • 4 bed • 1 bath • 1261 ft²
3 bedroom terraced house for sale in Park View, Bristol, BS15 — £380,000 • 3 bed • 2 bath • 1160 ft²
3 bedroom semi-detached house for sale in Selworthy, Kingswood, Bristol, BS15 — £375,000 • 3 bed • 1 bath • 914 ft²
4 bedroom detached house for sale in Selworthy, Kingswood, Bristol, BS15 — £435,000 • 4 bed • 2 bath • 1066 ft²
3 bedroom link detached house for sale in Kingsleigh Gardens, Bristol, Gloucestershire, BS15 — £375,000 • 3 bed • 2 bath • 938 ft²














































































































































