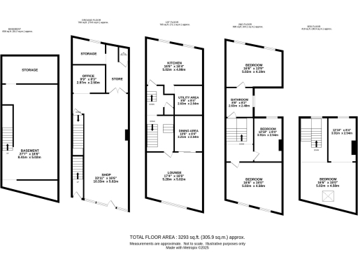
**Standout Features:**
- Freehold investment opportunity
- Four-story mixed-use property near Lowestoft town center
- Expansive 3,500 sq ft of floor space
- Previously a hairdressing salon with a self-contained four-bedroom maisonette above
- Potential for conversion into multiple units (subject to planning permission)
- Guide price: £80,000 - £100,000, sold via livestream auction on July 30, 2025
**Concise Summary:**
Discover an exciting freehold investment opportunity in the heart of Lowestoft, just a stone's throw from the vibrant town center. This four-story Victorian building offers a substantial total space of 3,500 sq ft, housing a former hairdressing salon on the ground floor and a self-contained four-bedroom maisonette above. While the property requires renovation and general updating, it features potential for conversion into multiple income-generating units, ideal for astute investors or developers looking to capitalize on the location's rental appeal.
The upper maisonette boasts generous living space, with a dining room, kitchen, four bedrooms, and a bathroom, enhancing its family-friendly nature. Additionally, enjoy the luxury of stunning views of Lowestoft Harbour. However, please note that the property has some structural issues, including damp and repair needs in certain areas, which will require attention. With its proximity to local amenities, schools, and transportation links, this mixed-use property presents a unique opportunity for investment that might not last long in today's market. Don’t miss your chance to transform this space into a lucrative rental or a comfortable family home!
Mixed use property for sale in 48 & 48a High Street, Lowestoft, Suffolk NR32 1HZ, NR32 — £80,000 • 1 bed • 1 bath • 646 ft²
Mixed use property for sale in 6 and 6b Hungate, Beccles, Norfolk NR34 9TL, NR34 — £90,000 • 1 bed • 1 bath • 782 ft²
7 bedroom house of multiple occupation for sale in 7 Beach Road, Lowestoft, Suffolk NR32 1EA, NR32 — £275,000 • 7 bed • 1 bath • 1949 ft²
7 bedroom house of multiple occupation for sale in 11 Regent Road, Lowestoft, Suffolk NR32 1PA, NR32 — £275,000 • 7 bed • 1 bath • 333 ft²
8 bedroom end of terrace house for sale in Commercial Road, Lowestoft, NR32 — £150,000 • 8 bed • 1 bath • 2171 ft²
4 bedroom cluster house for sale in 16 Salisbury Road, Lowestoft, Suffolk NR33 0HE, NR33 — £160,000 • 4 bed • 1 bath














































































