GL2 5SH - 2 bedroom apartment for sale in 17 Harker Close, Gloucester…

View on Property Piper

2 bedroom apartment for sale in 17 Harker Close, Gloucester, GL2

Summary - FLAT 17, 17, HARKER CLOSE GL2 5SH

2 bed 2 bath Apartment

**Standout Features:**
- **Shared Ownership**: Buy a 30% share for £79,500.
- **Monthly Rent**: £436.28 with service charges of £155.57.
- **Modern Design**: Constructed in 2023, featuring a private balcony.
- **Spacious Living**: Two bedrooms and two bathrooms.
- **Parking**: Off-street parking available.
- **Prime Location**: Close to local amenities and excellent schools.

**Summary:**
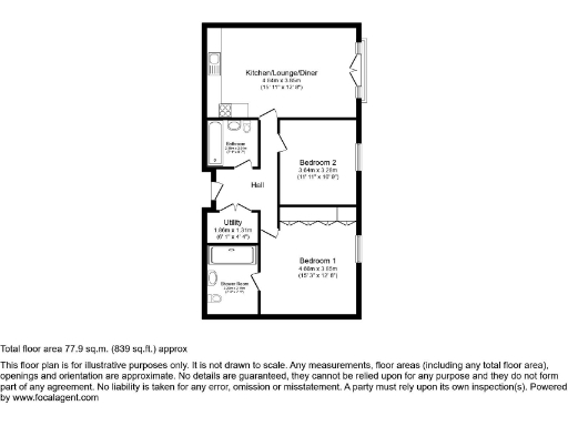
Discover this modern two-bedroom apartment at Harker Close, an ideal opportunity for first-time buyers or families looking for a shared ownership home. This stylish mid-terrace apartment, constructed in 2023, offers 839 sq. ft. of living space complete with a spacious living area, a fully-fitted kitchen, and a convenient shower cubicle in one of the two bathrooms. The property boasts a private balcony, perfect for enjoying mornings outdoors, and off-street parking for added convenience.

Situated in a vibrant community, you'll find Sainsbury's just a 3-minute walk away and can easily enjoy the scenic canal tow path a mere 10 minutes from your door. Excellent schools nearby enhance this location, ensuring quality education options for families. With affordable monthly rent and service charges, this apartment presents a perfect blend of comfort and affordability in a sought-after area. However, note that the building remains occupied, and you'll want to schedule a viewing promptly as such appealing properties do not last long on the market. Don't miss your chance to make this home your own!

Property Details

Brochure Descriptions

Image Descriptions

Floorplan Description

Rooms

Textual Property Features

Detected Visual Features

EPC Details

Nearby Schools

Nearest Bars And Restaurants

,,,,}

Nearest General Shops

,,}

Nearest Grocery shops

,,}

Nearest Supermarkets

,,}

Nearest Religious buildings

,,}

Nearest Medical buildings

,,,}

Nearest Leisure Facilities

,,,,}

Nearest Tourist attractions

,,}

Nearest Train stations

,,,,}

Nearest Bus stations and stops

,,,,}

Nearest Hotels

,,}

Tags

Local Market Stats

AirBnB Data

Similar Properties

Meta

High Res Images

Compatible Images

Low res Images

Thumbnails

Raw Images

High Res Floorplan Images

Compatible Floorplan Images

Low res Floorplan Images

FloorplanImages Thumbnail

Raw Floorplan Images