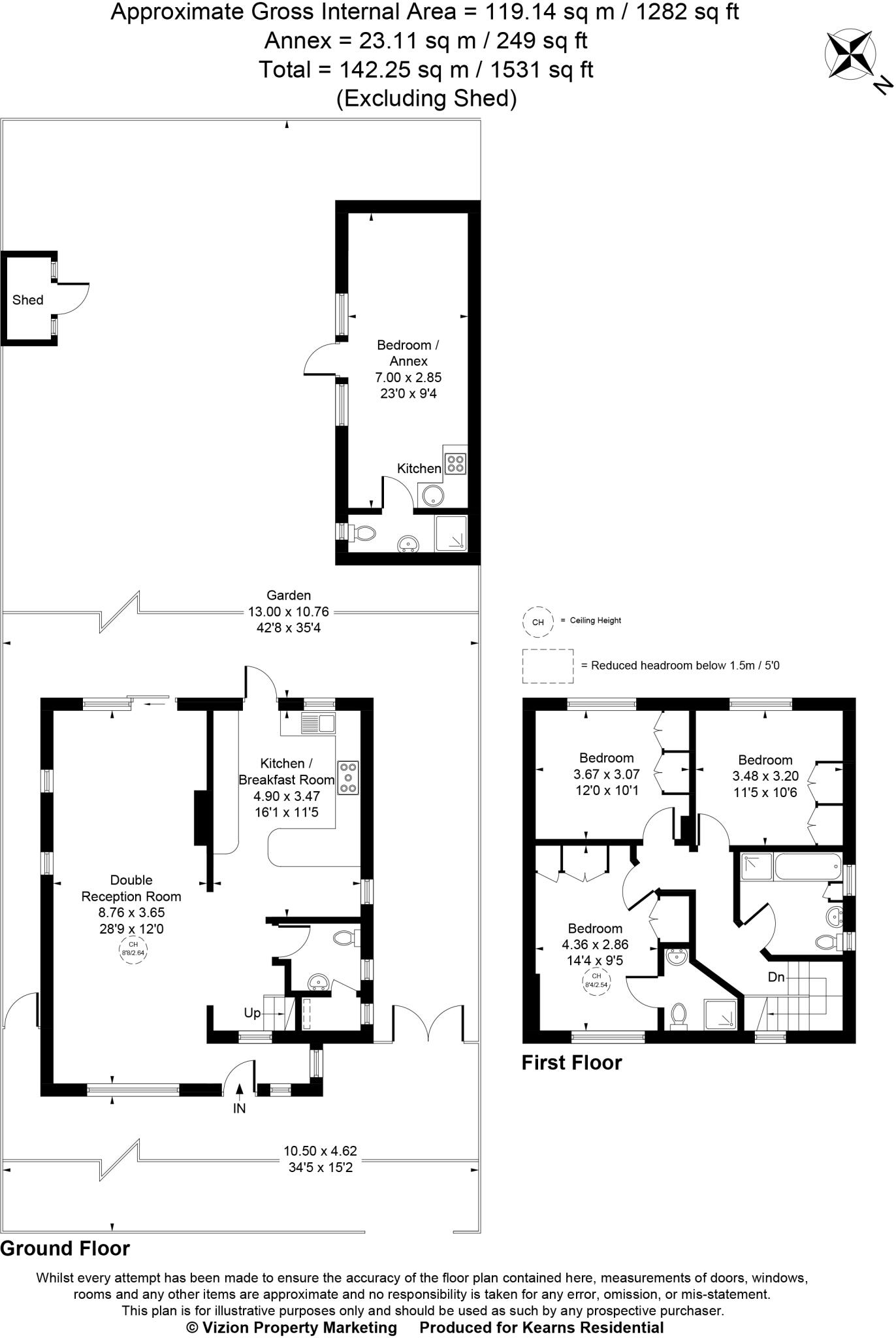
**Standout Features:**
- Large detached home with spacious layout
- Three generous bedrooms and two bathrooms
- Self-contained one-bedroom annexe—perfect for guests or rental potential
- Planning permission already granted for future renovations
- Huge driveway accommodating multiple vehicles
- Close proximity to Elizabeth Line (0.1 miles)
- Beautifully maintained garden (47ft) for outdoor enjoyment
**Concise Summary:**
Discover the charm of this stunning three-bedroom detached home in West Drayton, UB7, ideally located just 0.1 miles from the Elizabeth Line. Spanning approximately 1,531 sq ft, this residence features a generous double reception room perfect for entertaining, a sizable fitted kitchen, and three comfortable bedrooms upstairs. The bonus of a self-contained one-bedroom annexe offers unique rental or guest accommodation options. Enjoy a well-kept exterior with a spacious, paved driveway and an expansive garden—ideal for recreation or gardening enthusiasts.
With planning permission already granted, this property holds significant renovation potential that can enhance value further. The welcoming suburban setting is coupled with convenient access to local amenities, including schools with good Ofsted ratings. While the area suffers from a higher crime rate, the property’s excellent broadband speeds, off-street parking, and family-friendly layout present a unique opportunity for both families and investors alike. Don’t miss out on this well-priced property that combines comfort with future potential!
4 bedroom semi-detached house for sale in Cherry Orchard, West Drayton, UB7 — £700,000 • 4 bed • 2 bath • 1450 ft²
3 bedroom semi-detached house for sale in Cherry Orchard, West Drayton, UB7 — £700,000 • 3 bed • 1 bath • 1394 ft²
4 bedroom detached house for sale in Colham Avenue, Yiewsley, UB7 — £675,000 • 4 bed • 1 bath • 1610 ft²
3 bedroom semi-detached house for sale in Cherry Orchard, West Drayton, UB7 — £575,000 • 3 bed • 1 bath • 932 ft²
3 bedroom detached house for sale in Church Close, West Drayton, UB7 — £685,000 • 3 bed • 1 bath • 1449 ft²
5 bedroom detached house for sale in Ferrers Avenue, West Drayton, UB7 — £825,000 • 5 bed • 2 bath • 1707 ft²


































































































