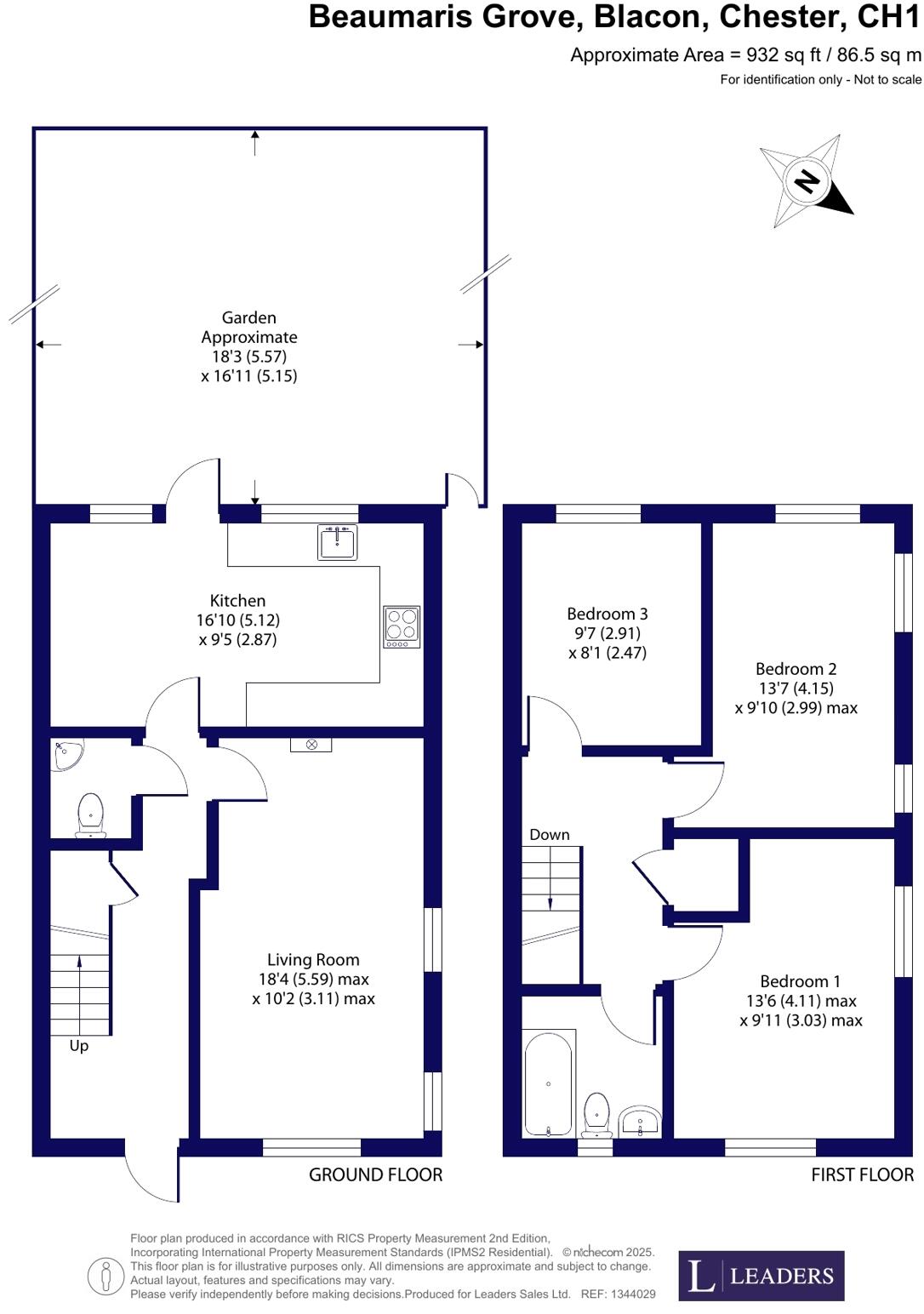
Newly renovated three-bedroom end terrace with loft potential and off-street parking..
Newly renovated throughout with modern fixtures and double glazing
Three bedrooms plus large loft space suitable for conversion (subject to consents)
Well-maintained small garden and off-street parking included
About 932 sq ft — average-sized, traditional layout
Mains gas boiler and radiators; efficient heating system
High local crime rate and very deprived area—security concern
No flood risk; constructed 2007 onwards with cavity insulation assumed
Small plot size — limited outdoor space compared with larger homes
This modern end-of-terrace house offers practical family living across three bedrooms and a comfortably sized living room. Newly renovated throughout, the interior benefits from double glazing, mains gas central heating and contemporary finishes that reduce immediate maintenance needs. The property measures about 932 sq ft and suits buyers wanting a move-in-ready home.
Outside, there is a well-maintained small garden and off-street parking for convenience. A large loft space provides clear potential for an additional room or storage (requires planning and building regulation checks). The plot is compact, so outdoor space is limited compared with larger gardens.
Location strengths include fast broadband and excellent mobile signal, plus nearby primary and secondary schools with mixed Ofsted outcomes. Practical utilities are close by, and the home sits in a city/major town setting with regular bus links.
Important considerations: the surrounding area records high crime levels and is classed as very deprived, which may affect insurance, security needs and long-term resale. Council tax band is not specified. Buyers should verify local safety, transport and school fit, and confirm loft conversion feasibility with the local authority before proceeding.
3 bedroom end of terrace house for sale in Beaumaris Grove, Blacon, Chester, Cheshire, CH1 — £205,000 • 3 bed • 1 bath • 883 ft²
2 bedroom semi-detached house for sale in Meadowside Mews, Saughall Road, Chester, Cheshire, CH1 — £240,000 • 2 bed • 1 bath • 732 ft²
3 bedroom terraced house for sale in Furne Road, Chester, Cheshire West And Chester, CH1 — £190,000 • 3 bed • 1 bath • 928 ft²
3 bedroom terraced house for sale in Newton Lane, Chester, CH2 — £260,000 • 3 bed • 1 bath • 1075 ft²
3 bedroom semi-detached house for sale in Westbourne Road, Chester, CH1 — £275,000 • 3 bed • 1 bath • 764 ft²
3 bedroom terraced house for sale in Bachelors Lane, CHESTER, Cheshire, CH3 — £425,000 • 3 bed • 2 bath • 1331 ft²


























































































