**Standout Features:**
- Grade II listed semi-detached former post office
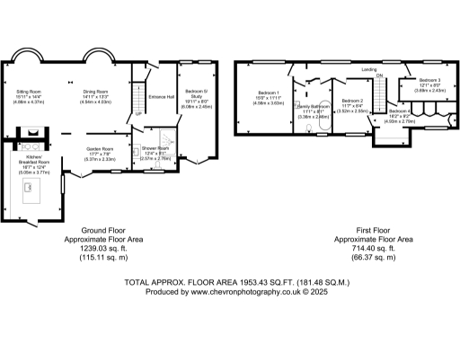
- Approximately 2,000 sq. ft. of versatile accommodation
- Stunning AGA kitchen/breakfast room, perfect for culinary enthusiasts
- Unique inglenook fireplace with wood-burning stove
- Central village location in the highly regarded Assington
- Off-road parking and garage/workshop space
- Total plot size of 0.26 acres, featuring a beautifully maintained garden
- Chain free, giving buyers immediate possession
**Potential Concerns:**
- Listed status may pose future renovation challenges
- Higher council tax band
Discover a unique opportunity with this enchanting Grade II listed former post office, nestled in the sought-after village of Assington. This charming semi-detached home features around 2,000 sq. ft. of delightful living space, perfect for families or anyone seeking a serene countryside lifestyle. The heart of the home boasts an impressive AGA kitchen/breakfast room with bespoke cabinetry and a cozy inglenook fireplace, creating an inviting ambiance throughout. With five versatile bedrooms, including a potential study, there's ample room for everyone.
Outside, enjoy the generous 0.26-acre plot featuring a well-kept garden that offers stunning views of farmland and woodland. The property also includes off-road parking and a garage/workshop, appealing to hobbyists or those in need of extra storage. While this historical gem may require consideration due to its listed status, its unique character and exceptional location provide a compelling reason to act quickly. Don’t miss the chance to call this charming slice of Assington home!
3 bedroom semi-detached house for sale in The Street, Stoke By Clare, Suffolk , CO10 — £450,000 • 3 bed • 2 bath • 1218 ft²
6 bedroom detached house for sale in Heath Road, East Bergholt, CO7 — £1,495,000 • 6 bed • 3 bath • 2594 ft²
3 bedroom semi-detached house for sale in High Street, Bildeston, Ipswich, IP7 — £425,000 • 3 bed • 1 bath • 1002 ft²
3 bedroom detached house for sale in Lower Street, Great Bealings, Woodbridge, Suffolk, IP13 — £450,000 • 3 bed • 1 bath • 1383 ft²
4 bedroom cottage for sale in Bear Street, Nayland, Suffolk, CO6 — £420,000 • 4 bed • 2 bath • 1200 ft²
5 bedroom detached house for sale in Sampford Road, Radwinter, Saffron Walden, CB10 — £1,100,000 • 5 bed • 3 bath • 2375 ft²






































































































































