PR1 8SL - 5 bedroom terraced house for sale in Spa Road, Preston, PR1

View on Property Piper

5 bedroom terraced house for sale in Spa Road, Preston, PR1

Summary - 10 SPA ROAD PRESTON PR1 8SL

5 bed 5 bath Terraced

**Standout Features:**
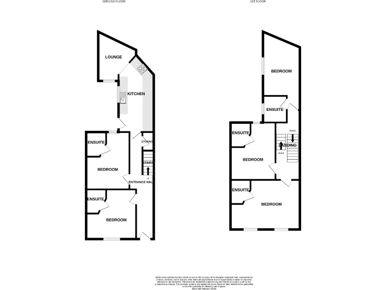
- 5 spacious bedrooms, each with en-suite bathroom
- Modern kitchen and communal lounge
- Excellent rental potential with current Airbnb income of £5,580/month
- Prime location near UCLan, city center, and public transport
- Chain free with freehold tenure
- Outdoor rear yard

**Overall Summary:**
This charming mid-terrace Victorian house is an exceptional investment opportunity located in a bustling cosmopolitan neighborhood of Preston. Currently functioning as a successful Airbnb, this property boasts a remarkable monthly rental income, making it perfect for investors seeking lucrative returns. Ideal for students and professionals alike, the property has five generously-sized bedrooms, each with en-suite bathrooms, providing both comfort and privacy. The luxury modern kitchen flows into a welcoming communal lounge, promoting a vibrant living space.

Set within walking distance of UCLan, Preston city center, and excellent transport links, this property caters to a lifestyle of convenience. Though some maintenance is required, the potential for future renovations adds further appeal to this home. With demand in this area expected to remain high, prompt action is encouraged—immense value and incredible potential await you in this unique property, so don’t miss out!

Property Details

Image Descriptions

Floorplan Description

Rooms

Textual Property Features

Detected Visual Features

EPC Details

Nearby Schools

Nearest Bars And Restaurants

,,,,}

Nearest General Shops

,,}

Nearest Grocery shops

,,}

Nearest Supermarkets

,,}

Nearest Religious buildings

,,}

Nearest Medical buildings

,,,}

Nearest Leisure Facilities

,,,,}

Nearest Tourist attractions

,,}

Nearest Train stations

,,,,}

Nearest Bus stations and stops

,,,,}

Nearest Hotels

,,}

Tags

Local Market Stats

AirBnB Data

Similar Properties

Meta

High Res Images

Compatible Images

Low res Images

Thumbnails

Raw Images

High Res Floorplan Images

Compatible Floorplan Images

Low res Floorplan Images

FloorplanImages Thumbnail

Raw Floorplan Images