Central Whitstable home with modern extension and sunny garden, minutes from shops and station.
4 double bedrooms across three floors
Open-plan kitchen/dining with rooflights and folding doors
South-facing landscaped garden, ideal for alfresco entertaining
Single shower room only for four bedrooms
Recently remodelled — high-spec fixtures and finishes
Chain free; conservation area location close to shops and station
Small plot and typical terraced footprint limits outdoor space
Freehold tenure; confirm heating and service warranties
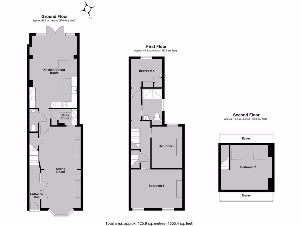
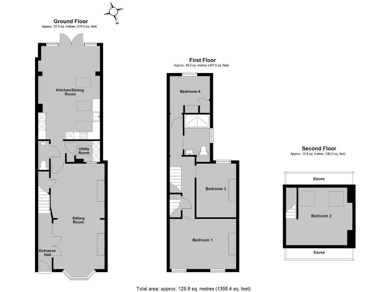
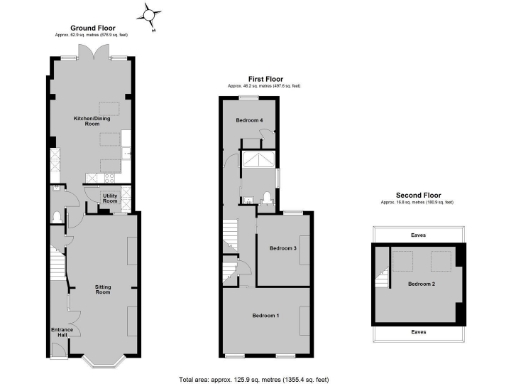
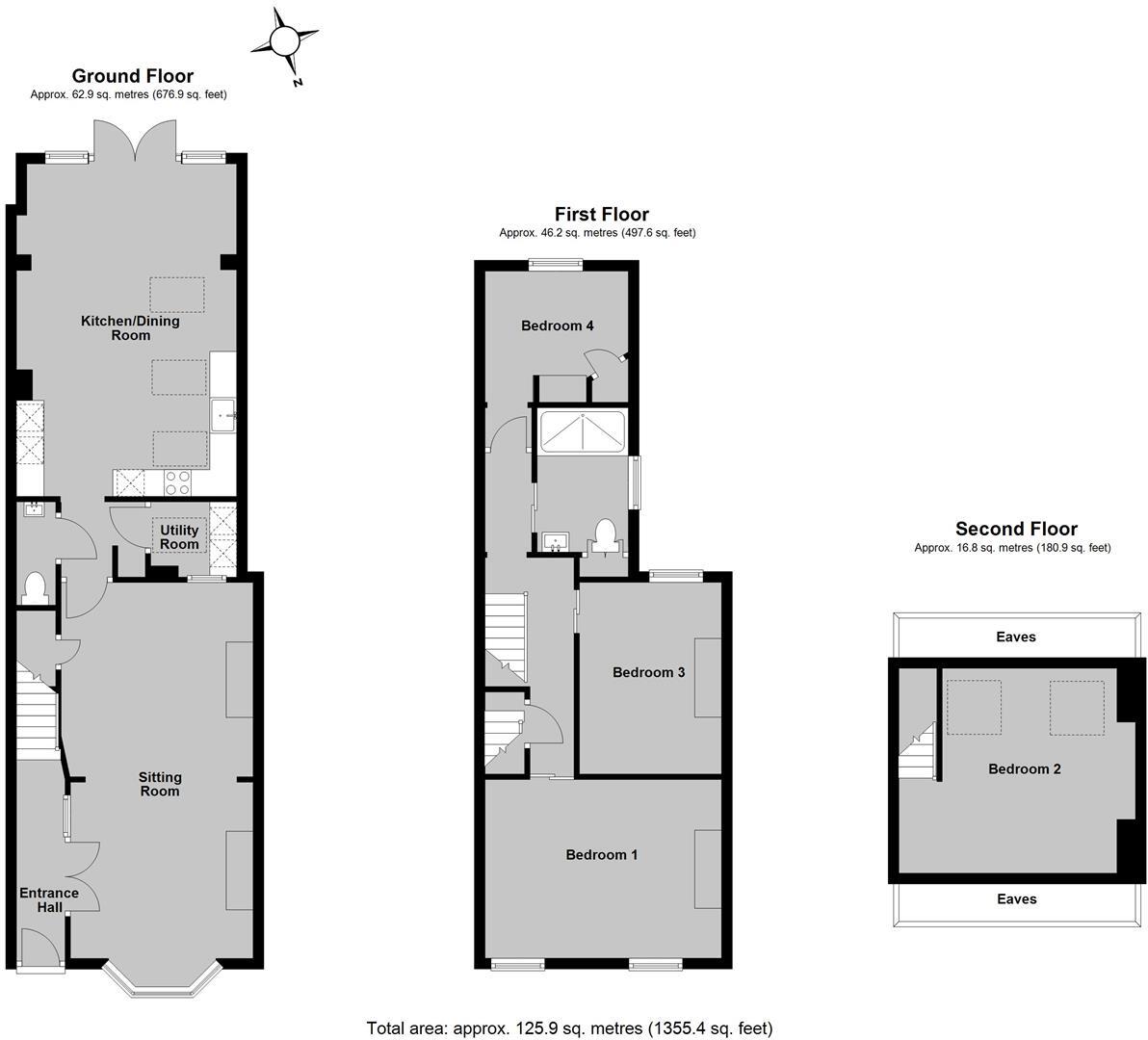
This dramatically remodelled Victorian mid-terrace blends period character with a high-spec contemporary rear extension, arranged over three storeys and offering 1,356 sq ft of living space. The open-plan kitchen/dining room with rooflights and folding doors opens to a south-facing landscaped garden, creating excellent indoor–outdoor flow for family life and entertaining.
The layout provides four double bedrooms, a large sitting room and a modern first-floor shower room. Finished throughout to a high standard, the house is chain free and sits within Whitstable’s conservation area, a short walk from the High Street, beach and station (0.4 miles).
Practical points to note: the property has a single shower room serving four bedrooms and a relatively small rear plot. Heating is electric with a boiler and radiators; the house was fully renovated so ongoing maintenance is likely low, but buyers should confirm services and warranty details.
This home will suit families or professionals seeking a central, seaside lifestyle with ready-to-enjoy accommodation and scope to personalise further if desired. Its proximity to good schools, local amenities and rail links makes it a strong commuter option as well as a comfortable family base.
3 bedroom terraced house for sale in Regent Street, Whitstable, CT5 — £539,950 • 3 bed • 2 bath • 1128 ft²
3 bedroom terraced house for sale in Albert Street, Whitstable, CT5 — £425,000 • 3 bed • 2 bath • 910 ft²
4 bedroom terraced house for sale in Cromwell Road, Whitstable, CT5 — £650,000 • 4 bed • 2 bath • 1733 ft²
3 bedroom terraced house for sale in Woodlawn Street, Whitstable, CT5 — £420,000 • 3 bed • 2 bath • 934 ft²
4 bedroom end of terrace house for sale in Warwick Road, Whitstable, CT5 — £485,000 • 4 bed • 1 bath • 1174 ft²
2 bedroom terraced house for sale in Woodlawn Street, Whitstable, CT5 — £425,000 • 2 bed • 2 bath • 1055 ft²










































































