Spacious five-bedroom detached with oak garden room, triple garage and sweeping rural views.
Five double bedrooms across three floors, ensuite and family bathroom
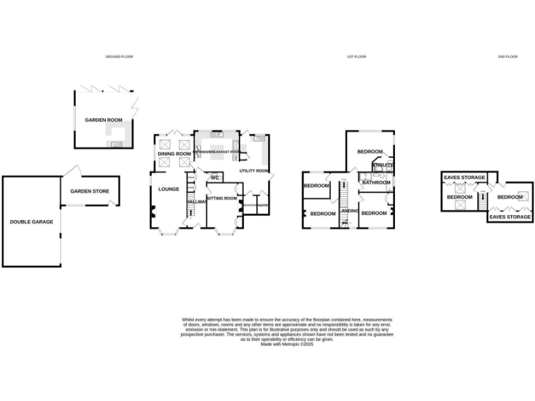
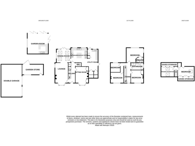
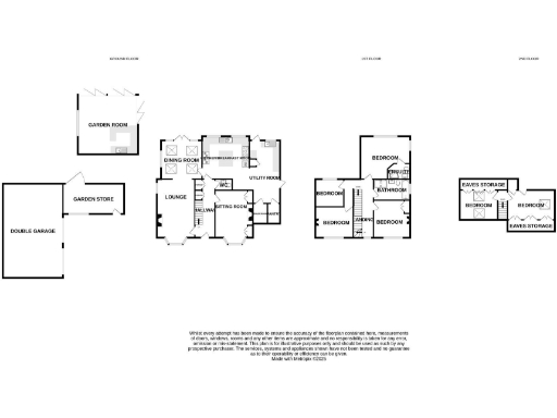
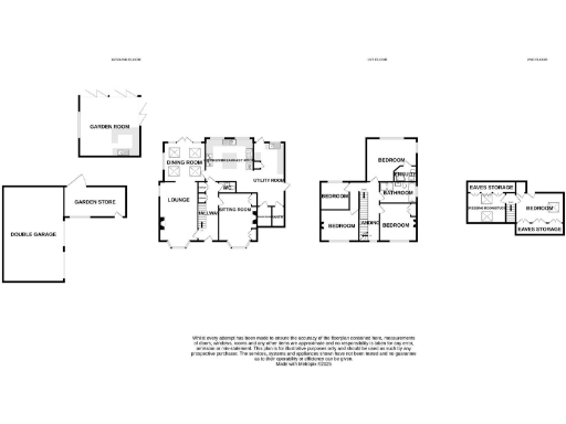
Set on about 0.6 acres, this substantial detached 1928 property has been newly renovated and offers generous, well-balanced accommodation over three floors. The ground floor centres on a high-spec Shaker kitchen with Quartz worktops and a large utility/prep room, plus two reception rooms that open onto formal gardens and countryside views.
The standout external features are a custom-built Green Oak garden room with fitted kitchen and bi-fold doors, and a matching triple garage with adjacent tack room. Hardstanding provides off-street parking for several vehicles behind electric gates. Bedrooms are well proportioned across the first and second floors, with an ensuite and family bathroom both benefitting from underfloor heating.
Practical points to note: heating is from an oil-fired boiler (not a community supply) and the property’s walls are cavity-built with no confirmed insulation. Broadband speeds are very slow despite excellent mobile signal. Council Tax is Band G and will be relatively expensive. Double glazing was installed before 2002.
This home suits buyers wanting rural privacy with strong family living space and substantial outbuildings. It also offers scope for energy upgrades and further tailoring to personal taste, while providing immediate move-in quality in most areas.
5 bedroom detached house for sale in Blakelow Road, Macclesfield, SK11 — £930,000 • 5 bed • 4 bath • 2766 ft²
4 bedroom detached house for sale in Fanshawe Lane, Henbury, Cheshire, SK11 — £3,500,000 • 4 bed • 5 bath • 5834 ft²
5 bedroom detached house for sale in Newton Hall Lane, Mobberley, WA16 — £2,350,000 • 5 bed • 3 bath • 2545 ft²
6 bedroom detached house for sale in Sutton, Macclesfield, Cheshire, SK11 — £1,950,000 • 6 bed • 4 bath • 7062 ft²
3 bedroom house for sale in Coppice Side Farm, Heaton, Rushton Spencer, Macclesfield, SK11 — £675,000 • 3 bed • 1 bath • 1479 ft²
4 bedroom detached house for sale in Castle Hill, Mottram St. Andrew, Macclesfield, SK10 — £1,195,000 • 4 bed • 3 bath • 2200 ft²


























































































































