**Standout Features:**
- Charming Victorian cottage with potential for renovation
- Two spacious L-shaped double bedrooms
- Ground floor bathroom and living/dining area
- Small patio garden for outdoor enjoyment
- Excellent location near Oxford city center and rail station
**Notable Concerns:**
- Requires modernization
- Potential structural issues due to age
- Limited plot size
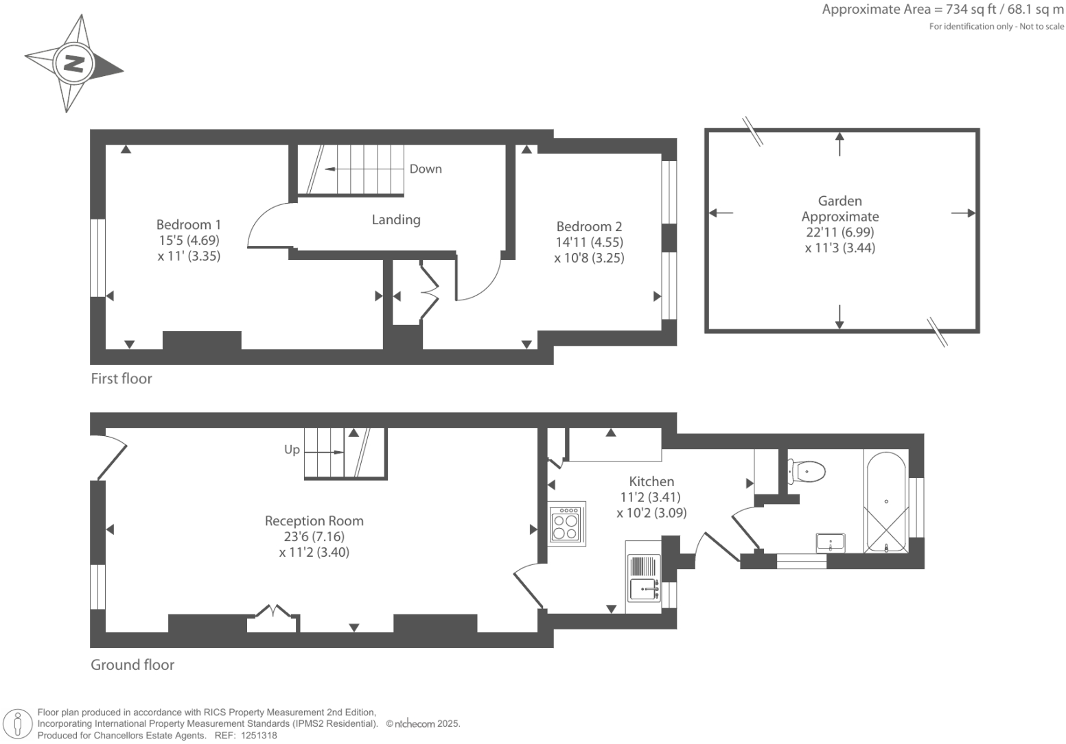
This quaint Victorian terraced cottage offers an excellent opportunity for buyers looking to invest in a property that allows for personal touches and modifications. Spanning approximately 734 sq ft, the generous ground floor features a sizable reception room with natural light, a functional kitchen leading to a small but manageable patio garden, and a separate bathroom. Upstairs, the layout currently consists of two double bedrooms, providing flexibility to create additional living space or a first-floor bathroom with creative remodeling.
Located on Osney Island, this property is within a conservation area that boasts a strong sense of community. The vibrant residential neighborhood is a short walk to the city center and conveniently located near essential amenities and green spaces, making it ideal for families and first-time buyers alike. While the cottage does need refurbishment, its classic design and strategic position present a unique chance for buyers to craft a modern home in one of Oxford's charming locales. Don’t miss this opportunity—properties like this don't last long in such a desirable area!
3 bedroom terraced house for sale in Bridge Street, Oxford, Oxfordshire, OX2 — £675,000 • 3 bed • 2 bath • 892 ft²
4 bedroom terraced house for sale in West Street, Oxford, Oxfordshire, OX2 — £795,000 • 4 bed • 2 bath • 1508 ft²
2 bedroom terraced house for sale in South Street, Oxford, OX2 — £525,000 • 2 bed • 1 bath • 786 ft²
2 bedroom end of terrace house for sale in West Street, Oxford, Oxfordshire, OX2 — £575,000 • 2 bed • 2 bath • 972 ft²
3 bedroom terraced house for sale in South Street, Oxford, Oxfordshire, OX2 — £490,000 • 3 bed • 1 bath • 722 ft²
2 bedroom terraced house for sale in East Street, Osney Island, Oxford, OX2 — £725,000 • 2 bed • 1 bath • 965 ft²


























































