**Standout Features:**
- Spacious three-bedroom end-of-terrace family home
- Private, tiered patio garden and separate single garage
- Two large double bedrooms and a well-presented family bathroom
- Short distance to Highcliffe town center with independent shops and gourmet dining options
- Nearby Highcliffe Castle Golf Club and beautiful beaches
**Potential Concerns:**
- Average condition with existing maintenance needs
- No detailed mention of recent renovations or updates
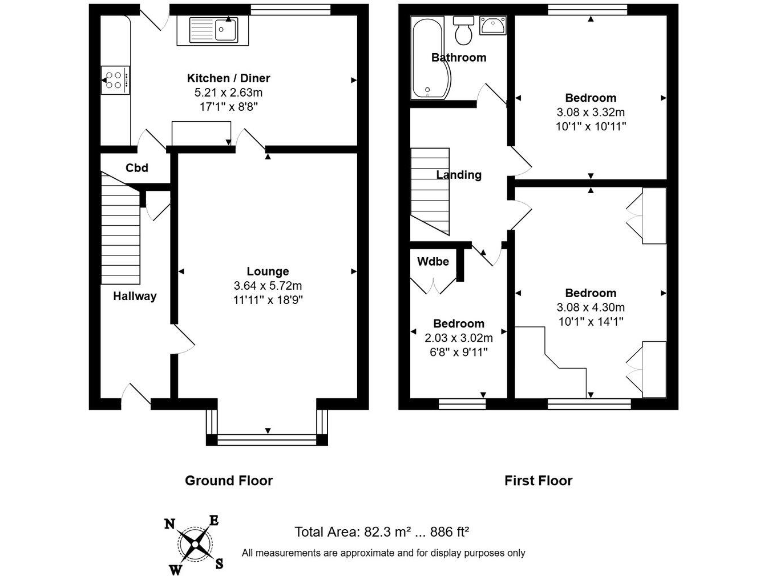
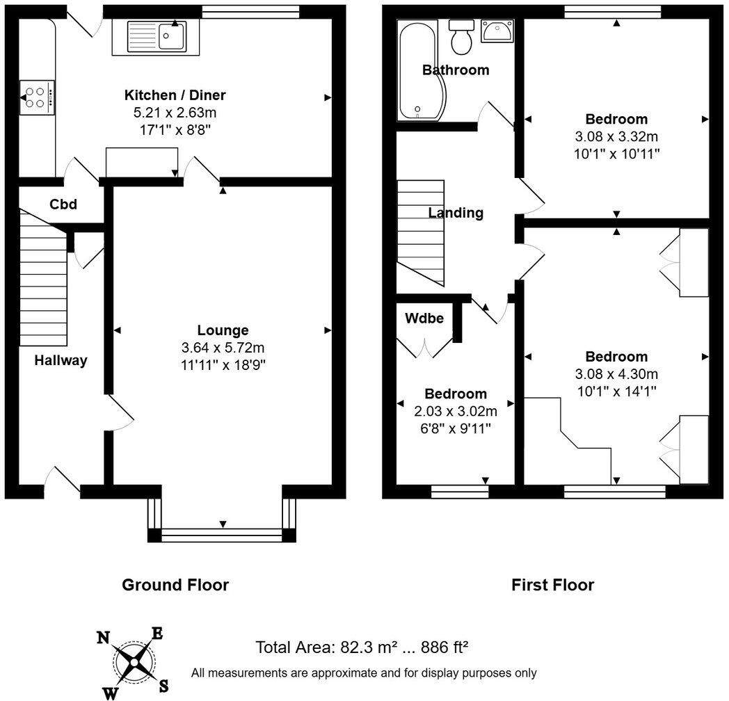
Welcome to this charming three-bedroom end-of-terrace home in Highcliffe, just a stone's throw away from local amenities and the picturesque coastline. Ideal for families, the property offers a generous living room with hardwood flooring and a bright, functional kitchen/breakfast area. The upstairs boasts two expansive double bedrooms, perfect for creating your own private retreats, alongside a cozy single bedroom and a stylish family bathroom.
Step outside to discover a well-maintained, tiered patio garden, perfect for outdoor gatherings or children's play, providing both privacy and tranquility. The secure, enclosed garden flows into a wrap-around lawn area, ensuring easy access to the front. The added convenience of a separate garage enhances storage possibilities and vehicle security. Located in a peaceful neighborhood, this home offers the perfect blend of coastal living and suburban comfort, making it a fantastic opportunity for first-time buyers or families looking for a cozy, inviting space to grow. Don’t miss your chance to own a slice of Highcliffe’s charm—this property won’t last long!
3 bedroom terraced house for sale in Highcliffe Christchurch , BH23 — £370,000 • 3 bed • 1 bath • 1033 ft²
3 bedroom semi-detached house for sale in Pine Crescent, Highcliffe, Christchurch, BH23 — £460,000 • 3 bed • 1 bath • 1033 ft²
3 bedroom end of terrace house for sale in Oakwood Road, Highcliffe, Christchurch, BH23 — £485,000 • 3 bed • 1 bath • 1319 ft²
3 bedroom end of terrace house for sale in Oakwood Road, Highcliffe, Christchurch, BH23 — £445,000 • 3 bed • 1 bath • 694 ft²
3 bedroom bungalow for sale in Terrington Avenue, Highcliffe On Sea, Christchurch, Dorset, BH23 — £750,000 • 3 bed • 2 bath • 1600 ft²
5 bedroom detached house for sale in Holmhurst Avenue, Highcliffe On Sea, Christchurch, Dorset, BH23 — £825,000 • 5 bed • 5 bath • 2700 ft²


























































