Generous garden, office pod and garage in a sought-after rural setting.
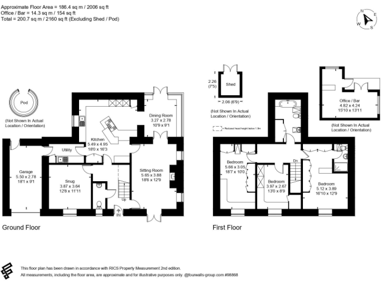
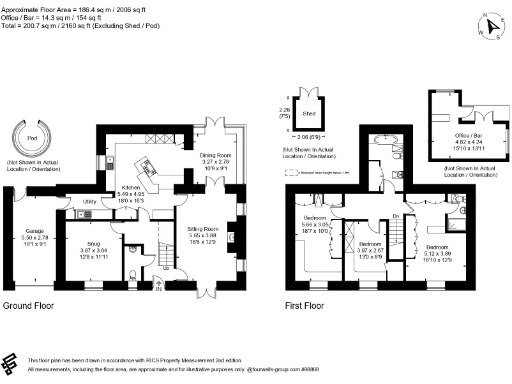
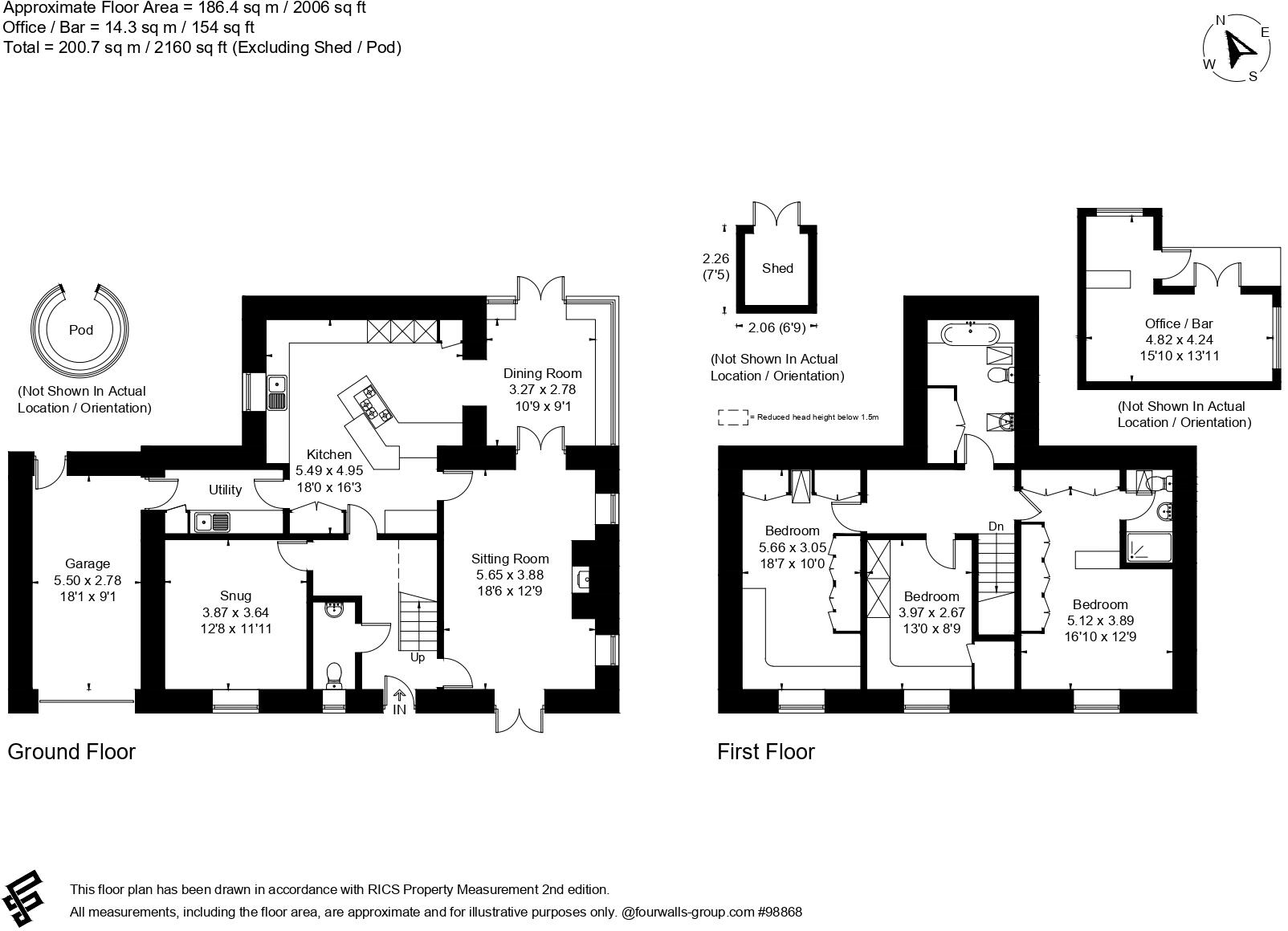
Extremely large overall size and generous 2,006 sq ft footprint
A substantial three-bedroom detached cottage set on a large plot in Alderton, combining generous living space with well-considered outdoor amenities. The house offers a versatile ground-floor layout — sitting room, snug, kitchen/breakfast room, orangery/dining room, utility and cloakroom — while all three bedrooms are good doubles, the principal benefitting from fitted wardrobes and an ensuite. A detached garden office and a rotating dining pod add flexible workspace and distinctive outdoor entertaining options.
The property dates from the mid-20th century (constructed c.1950–1966) but has been maintained and upgraded by the current owners: double glazing was installed from 2002 onwards and the gardens and ancillary buildings have been modernised. Heating is mains gas via a boiler and radiators and the garage offers internal access via the utility. The interior is presented in tidy, contemporary condition throughout, ready for immediate family occupation.
Practical points to note: broadband speeds are reported as slow and mobile signal only average, which may affect remote working despite the garden office. Council tax is above average for the area. Local schooling and services are strong for village life overall, though one nearby primary is recorded as requiring improvement. Alderton is a sought-after rural village with easy access to Bishops Cleeve, Winchcombe and Cheltenham, and convenient links to the M5 and Ashchurch station for commuting.
This home will suit families and professionals seeking a roomy, well-presented detached house with useful outbuildings and a substantial garden, where the outdoor pod and studio increase long-term flexibility. Buyers wanting the fastest internet should plan for an upgrade.
3 bedroom end of terrace house for sale in Brookside, Alderton, GL20 — £280,000 • 3 bed • 1 bath • 933 ft²
4 bedroom detached house for sale in Franklin Road, Alderton, Tewkesbury, GL20 — £699,950 • 4 bed • 3 bath • 2117 ft²
5 bedroom detached house for sale in Fletcher Close, Alderton, Tewkesbury, GL20 — £825,000 • 5 bed • 3 bath • 2500 ft²
2 bedroom bungalow for sale in Willow Bank Road, Alderton, Tewkesbury, Gloucestershire, GL20 — £500,000 • 2 bed • 1 bath • 1453 ft²
2 bedroom cottage for sale in School Road, Alderton, Tewkesbury, GL20 — £325,000 • 2 bed • 1 bath • 690 ft²
3 bedroom detached house for sale in Willow Bank Road, Alderton, Tewkesbury, Gloucestershire, GL20 — £490,000 • 3 bed • 1 bath • 1227 ft²


























































