Large secluded plot with flexible family living and extension potential.
Rural cul-de-sac location with high hedging and privacy
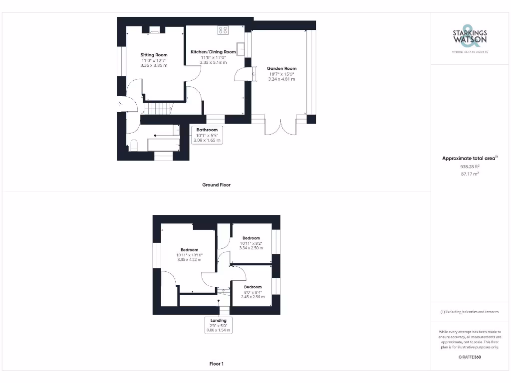
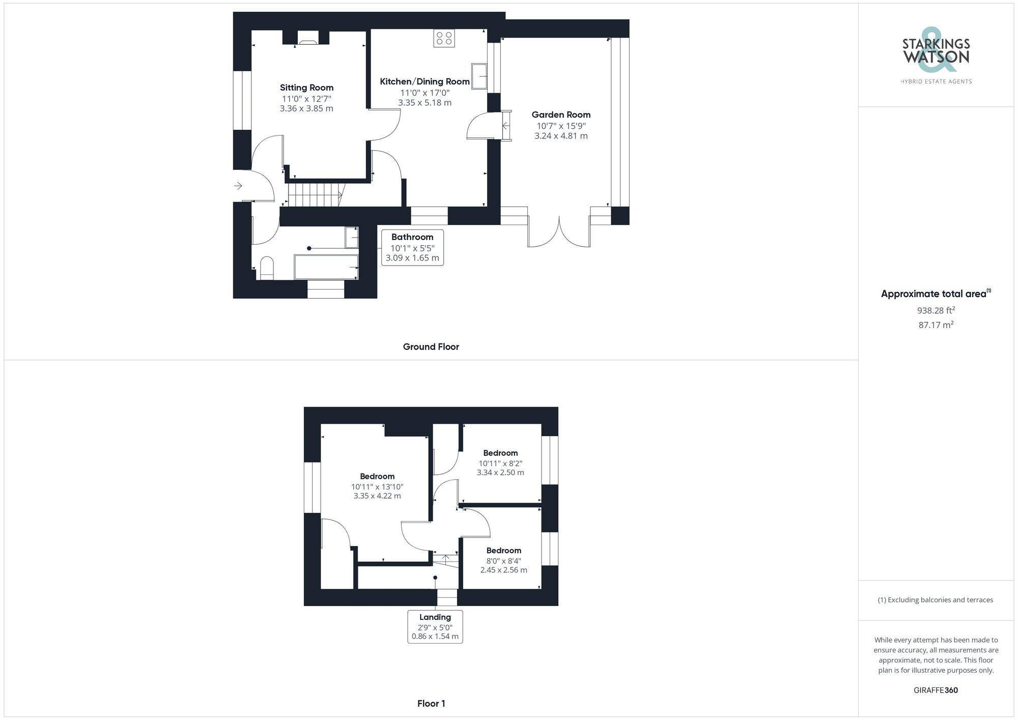
Set at the end of a quiet rural cul-de-sac, this three-bedroom semi-detached home will suit a family seeking space and privacy. The house occupies a large, secluded plot with wrap-around gardens, off-street parking and mature hedging that screens the property from the lane. Internally there is a 12' sitting room with an open fire, a generous 17' kitchen/dining room and a garden room with a warm roof and French doors to the garden.
Built in the mid-20th century and offered freehold, the property extends to about 938 sq ft and is ready to move into with double glazing, a working oil-fired boiler and a water softener in place. There is clear potential to modernise or extend (subject to planning) to create more family space or increase value. The single ground-floor bathroom and period layout mean some updating would benefit contemporary family living.
Practical points to note: heating is oil-fired (not a mains gas supply) and broadband speeds in the area are slow. The EPC is rated E. These factors are typical for a rural village setting and are offset by low council tax and a large garden useful for children, pets or home-growing. Overall this is a characterful family home in a peaceful village setting with genuine scope to personalise and improve.
4 bedroom semi-detached house for sale in Gunton Road, Loddon, Norwich, NR14 — £270,000 • 4 bed • 1 bath • 947 ft²
3 bedroom detached bungalow for sale in Green Lane, Hales, Norwich, NR14 — £300,000 • 3 bed • 1 bath • 992 ft²
3 bedroom link detached house for sale in Gale Close, Hales, Norwich, NR14 — £290,000 • 3 bed • 1 bath • 980 ft²
3 bedroom semi-detached house for sale in Lackford Close, Brundall, Norwich, NR13 — £270,000 • 3 bed • 1 bath • 850 ft²
3 bedroom semi-detached house for sale in All Saints South Elmham, Halesworth, Suffolk, IP19 — £300,000 • 3 bed • 1 bath • 897 ft²
3 bedroom semi-detached house for sale in Springfield Terrace, Alburgh, Harleston, IP20 — £315,000 • 3 bed • 1 bath • 1142 ft²






































































































