Period charm, spacious rooms and immediate countryside walks on your doorstep.
Three good-sized bedrooms with en-suite shower room
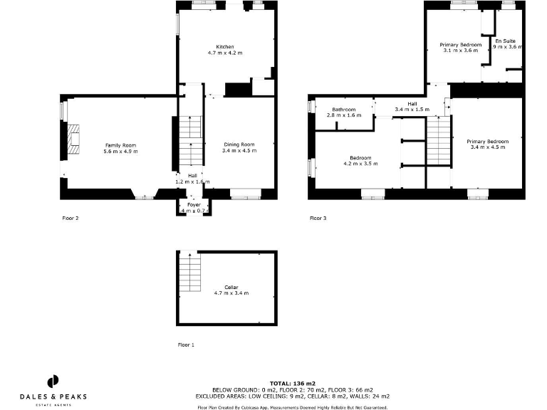
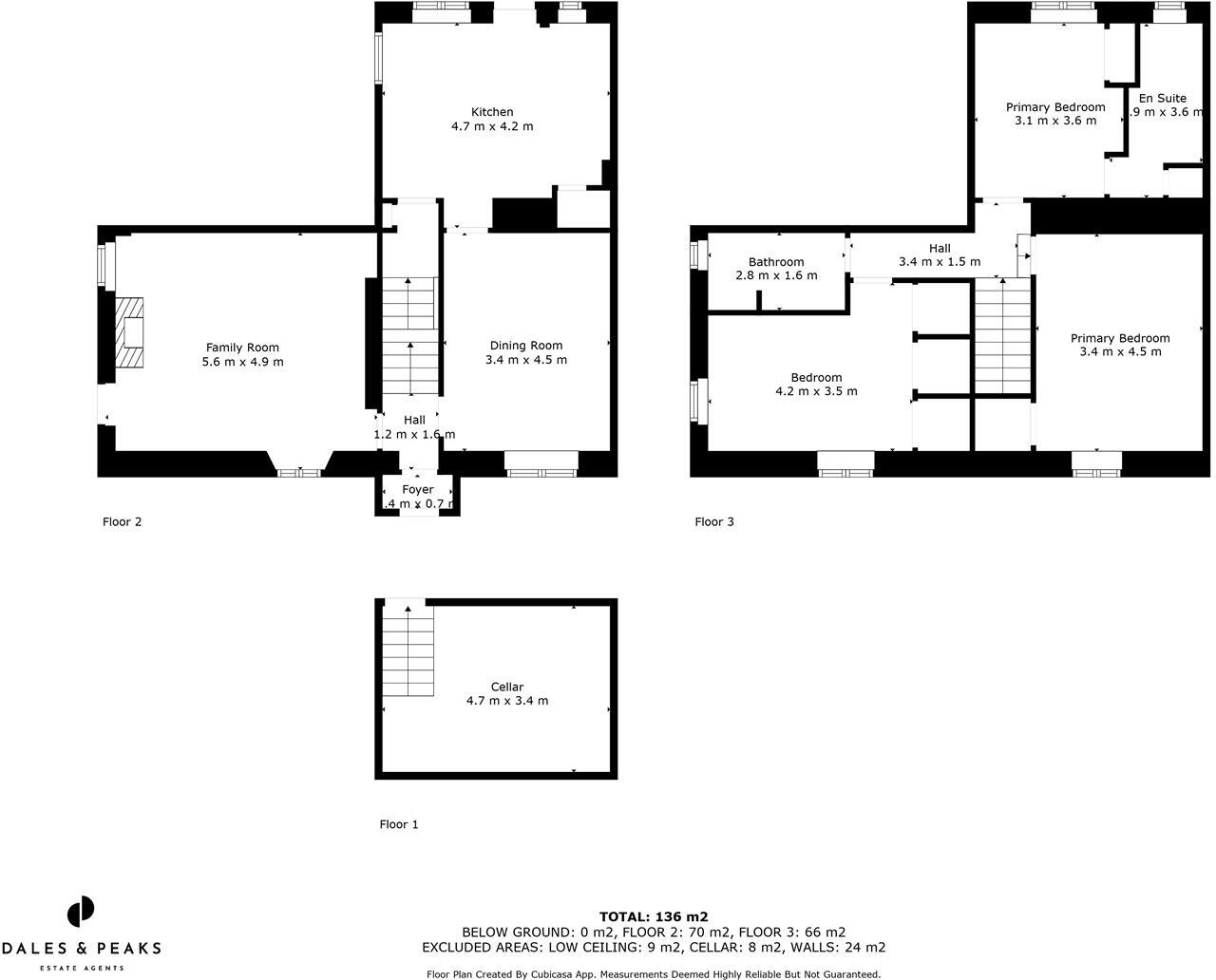
Set in the tranquil Peak District hamlet of Great Hucklow, Gate House is a characterful period cottage offering spacious family living across 1,463 sq ft. Stone detailing, exposed beams and a farmhouse-style kitchen with a Rangemaster give the house authentic rural charm and practical reception space for everyday life and entertaining.
Accommodation includes two reception rooms, three good-sized bedrooms and two bathrooms (one en-suite), plus cellar storage. The low-maintenance courtyard and additional patio provide a private outdoor area with immediate countryside views and direct access to local walks — ideal for a household that values outdoor life and village tranquillity.
Practical points to note: heating is by bottled LPG to a boiler and radiators, the EPC rating is D, and the stone walls are assumed to have no insulation. The plot is small and the garden is courtyard-style, so outdoor space is limited compared with larger country properties. There is scope for sensitive internal modernisation and potential to improve energy efficiency subject to planning and relevant permissions.
Overall this is a large-feeling, period cottage well suited to families or buyers seeking a rural retreat with strong character, convenient village amenities and Peak District access, combined with straightforward renovation potential to add modern comforts.
3 bedroom cottage for sale in Little Hucklow, Buxton, SK17 — £600,000 • 3 bed • 1 bath • 1683 ft²
3 bedroom end of terrace house for sale in Great Hucklow, Buxton, SK17 — £399,000 • 3 bed • 1 bath • 990 ft²
2 bedroom semi-detached house for sale in Great Hucklow, Buxton, SK17 — £285,000 • 2 bed • 1 bath • 749 ft²
3 bedroom semi-detached house for sale in Sparrowpit, SK17 — £315,000 • 3 bed • 1 bath • 873 ft²
3 bedroom semi-detached house for sale in Lakeside, Bakewell, DE45 — £375,000 • 3 bed • 2 bath • 1573 ft²
2 bedroom semi-detached house for sale in The Wash, Chapel-En-Le-Frith, High Peak, SK23 — £524,000 • 2 bed • 1 bath • 840 ft²






































































































