Compact period home with garden, gas heating and town-centre convenience.
One double bedroom with front and rear windows
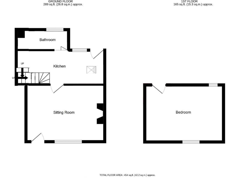
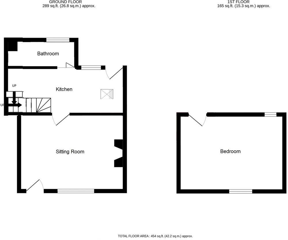
A characterful one-bedroom stone cottage in the heart of Crewkerne, this mid-terrace home brings period charm and a compact, convenient layout. Low ceilings, exposed beams and a flagstone-floored sitting room with an open fire create atmosphere and immediate kerb appeal. The large first-floor double bedroom and enclosed rear garden add practical comforts for everyday living.
Practical updates include mains gas central heating with a boiler installed two years ago and double glazing. The kitchen has a breakfast bar, Velux window and direct access to a paved seating area, while the rear garden provides a private outdoor space and patio at the far end. Unrestricted on-street parking sits outside on a one-way street.
Buyers should note the cottage’s modest proportions and low ceilings, making it best suited to a single occupant or couple rather than those needing lots of space. The property’s stone walls are likely uninsulated, glazing predates 2002, and there is an access route/neighbor manhole at the top of the garden. The local area shows above-average crime statistics, and parking is on-street rather than off-road.
This freehold terrace offers an affordable Town Centre base with genuine period character and straightforward living. It will particularly suit first-time buyers or downsizers seeking a manageable home close to amenities and transport links, and for those willing to live with compact rooms or to carry out minor energy-efficiency improvements.
1 bedroom terraced house for sale in Middle Path, Crewkerne, TA18 — £160,000 • 1 bed • 1 bath • 808 ft²
2 bedroom terraced house for sale in 14 Hermitage Street, TA18 — £159,950 • 2 bed • 1 bath • 547 ft²
2 bedroom cottage for sale in Hermitage Street, Crewkerne - TOWN CENTRE LOCATION, TA18 — £185,000 • 2 bed • 1 bath • 732 ft²
1 bedroom terraced house for sale in Bowditch Row, Crewkerne, TA18 — £140,000 • 1 bed • 1 bath • 410 ft²
2 bedroom terraced house for sale in 49 South Street, TA18 — £165,000 • 2 bed • 1 bath • 586 ft²
2 bedroom cottage for sale in West Street, Crewkerne- TWO BEDROOMS, TA18 — £165,000 • 2 bed • 1 bath • 442 ft²














































