Newly renovated, light-filled family house near the beach and schools.
Almost 2,800 sq ft of living space on a large private plot
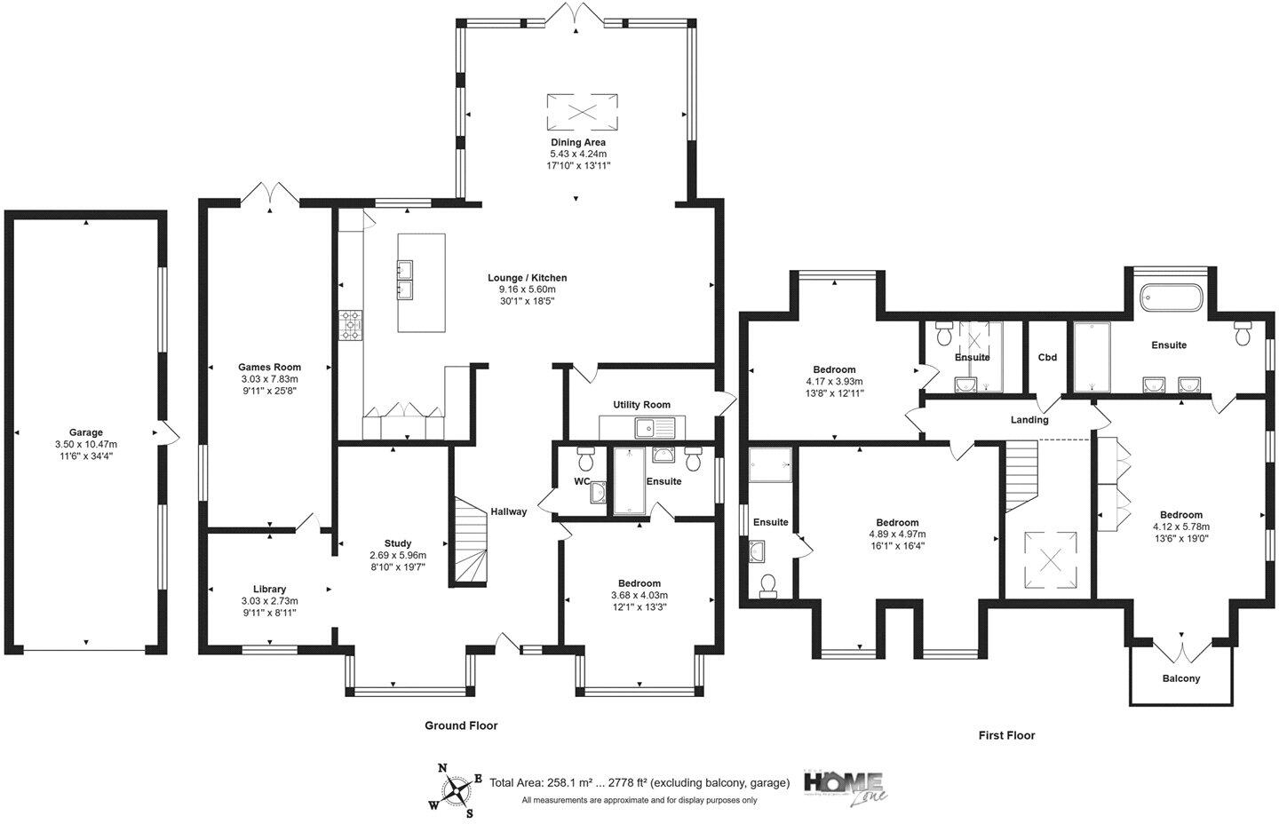
Set within the desirable Friars Cliff area close to Avon Beach, this newly renovated New England–style detached house spans almost 2,800 sq ft and sits on a large, private plot. The home combines period character—bay and sash windows, high ceilings—with a contemporary extension and high-spec finishes, creating generous, light-filled living ideal for family life and entertaining.
Ground-floor living centres on a 30ft-plus open-plan kitchen and living area with central island, bespoke cabinetry and bi-fold doors that open to a porcelain terrace and covered pergola. The orangery dining room and well-landscaped private garden extend entertaining space outdoors, while a double-length detached garage offers parking and potential for an annexe or studio (subject to planning permission).
Accommodation includes four double bedrooms, each with ensuite facilities, plus a principal suite with balcony. Practical features include a utility room, study, games/library room and plentiful built-in storage. The recent renovation means the house is presented in turn-key condition, though the exact installation date of the double glazing is not specified.
Practical considerations: the property is Freehold, has mains gas central heating and no reported flood risk. It sits in Council Tax Band F, which reflects higher running costs. Any conversion of the garage would require appropriate permissions. Overall this home suits families seeking a spacious, move-in-ready coastal house with strong entertaining credentials and scope for adapted use of outbuildings.
4 bedroom detached house for sale in Vecta Close, Friars Cliff, Christchurch, BH23 — £1,150,000 • 4 bed • 2 bath • 3000 ft²
4 bedroom detached house for sale in Brook Way, Friars Cliff, Christchurch, Dorset, BH23 — £875,000 • 4 bed • 2 bath • 2021 ft²
4 bedroom detached house for sale in Island View Avenue, Christchurch, Dorset, BH23 — £1,100,000 • 4 bed • 3 bath • 1538 ft²
5 bedroom detached house for sale in Glengarry Way, Friars Cliff, Christchurch, Dorset, BH23 — £1,195,000 • 5 bed • 2 bath • 1800 ft²
4 bedroom detached house for sale in Avon Run Close, Friars Cliff, Christchurch, Dorset, BH23 — £2,500,000 • 4 bed • 3 bath • 2205 ft²
5 bedroom detached house for sale in Pauntley Road, Mudeford, Christchurch, BH23 — £1,500,000 • 5 bed • 4 bath • 3343 ft²


















































































