Newly built detached home with modern finishes and convenient transport links.
- Individually designed new build home, completed 2025
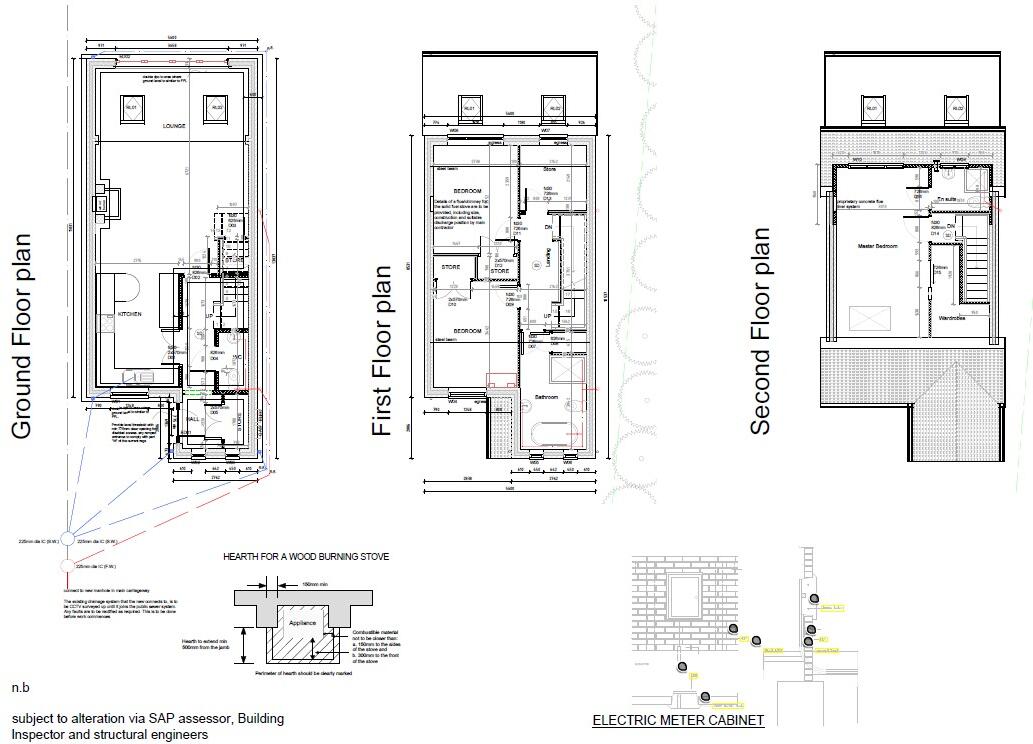
- Accommodation arranged over three floors
- Open-plan kitchen, dining and living with garden access
- Master bedroom with ensuite plus two additional bedrooms
- Off-street parking and small rear garden
- EPC currently to be confirmed
- Broadband speeds in area reported as very slow
- Local area shows higher deprivation despite very low crime
An individually designed detached new build arranged over three floors, completed 2025 and offered freehold. The ground floor delivers an open-plan kitchen, dining and living area with direct access to a modest rear garden, ideal for everyday family life and casual entertaining. The top floor hosts a master bedroom with ensuite, while two further well-sized bedrooms and a four-piece family bathroom occupy the middle level.
Quality finishes are specified throughout, and the property includes off-street parking and a contemporary stone façade with dark window frames. The location gives straightforward access to Stalybridge transport links and nearby green spaces in Saddleworth, plus highly rated local primary schools within easy reach — a practical draw for families.
Buyers should note a few material points: the EPC is to be confirmed, broadband speeds in the area are reported as very slow, and the plot size is small. The wider area records higher deprivation statistics despite a low local crime rate. Anticipated occupation is Winter 2025, presenting an opportunity to be the first occupant of a brand-new home.
3 bedroom detached house for sale in Huddersfield Road, Millbrook, Stalybridge, Greater Manchester, SK15 — £375,000 • 3 bed • 1 bath
3 bedroom semi-detached house for sale in Sandy Lane, Dukinfield, SK16 5, SK16 — £315,000 • 3 bed • 3 bath • 1010 ft²
3 bedroom detached house for sale in Demesne Drive, Stalybridge, SK15 — £299,950 • 3 bed • 3 bath • 997 ft²
4 bedroom detached house for sale in Mottram Road, Stalybridge, SK15 — £699,000 • 4 bed • 3 bath • 2157 ft²
2 bedroom detached house for sale in Rosewood, Mottram, SK14 — £343,000 • 2 bed • 2 bath • 945 ft²
3 bedroom semi-detached house for sale in Sandy Lane, Dukinfield, SK16 5, SK16 — £295,000 • 3 bed • 3 bath • 807 ft²






































