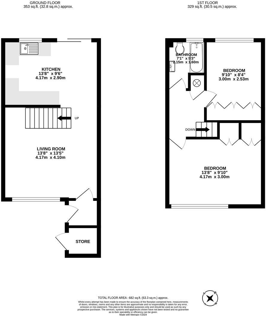
**Standout Features:**
- Two double bedrooms in a duplex maisonette
- 939 years remaining on the lease
- No onward chain, ideal for first-time buyers or investors
- Walking distance to Wokingham Town Centre and train station
- Easy access to the M4 motorway
- Communal garden with a south-facing outdoor seating area
- Includes a garage and permit parking
This charming two-bedroom duplex maisonette in Wokingham offers the perfect blend of convenience and comfort. With a long lease and no onward chain, it’s an excellent opportunity for first-time buyers or savvy investors. The property boasts a well-lit interior, including a spacious lounge and a fitted kitchen/dining room that opens to a communal garden—perfect for outdoor relaxation and gatherings. Located within walking distance to Wokingham Town Centre, enjoy quick access to shops, cafes, and highly-rated schools, including several with outstanding Ofsted ratings.
Although built in the mid-20th century, the maisonette is in good condition; however, potential buyers should note that electric heating is used and there are no insulation measures currently in place, which may require consideration for energy efficiency. The convenience of a garage adds further value, making this home not only comfortable but practical for those seeking more space. Don't miss the chance to make this duplex your own in a thriving community—properties like this don't last long!
2 bedroom maisonette for sale in Wiltshire Drive, Wokingham, Berkshire, RG40 — £325,000 • 2 bed • 1 bath • 761 ft²
2 bedroom maisonette for sale in Wiltshire Drive, Wokingham, Berkshire, RG40 — £335,000 • 2 bed • 1 bath • 954 ft²
3 bedroom maisonette for sale in Elms Walk, Wokingham, Berkshire, RG40 — £425,000 • 3 bed • 2 bath • 1146 ft²
2 bedroom maisonette for sale in Latimer Road, Wokingham, RG41 — £280,000 • 2 bed • 1 bath • 710 ft²
2 bedroom maisonette for sale in Elms Road, Wokingham, Berkshire, RG40 2AA, RG40 — £250,000 • 2 bed • 1 bath • 674 ft²
2 bedroom apartment for sale in Ellison Way, Wokingham, RG40 — £250,000 • 2 bed • 1 bath • 661 ft²






















































