Compact two-bedroom flat with parking and long lease close to transport links.
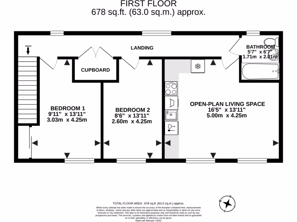
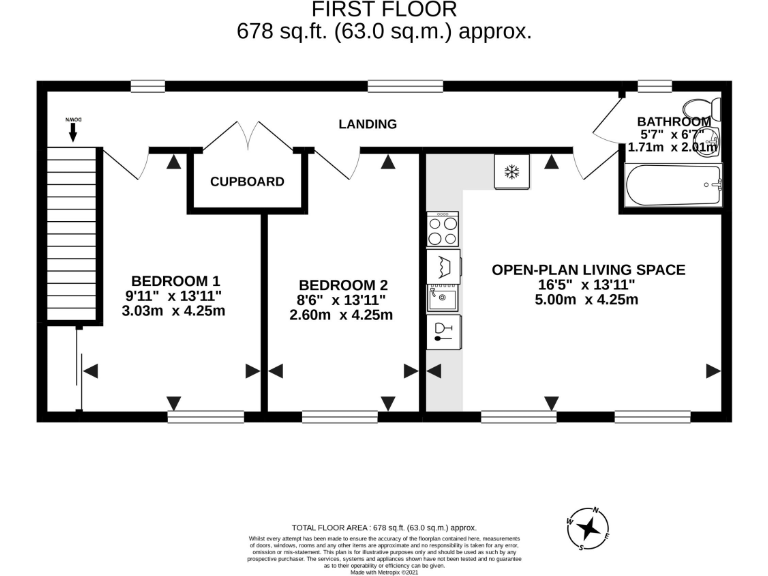
Two double bedrooms, each fits at least a double bed
Open-plan sitting/dining room with modern layout
Fully integrated kitchen with appliances included
Modern bathroom with shower over bath
Private front door with sheltered storm porch
Off-street parking plus small garden space
Leasehold with ~993 years remaining; no ground rent or service charge
First-floor access via stairs — not step-free
A bright first-floor maisonette set in Cranbrook, offering a practical layout for a first home or buy-to-let. The open-plan sitting and dining area flows to a fully integrated kitchen, giving a modern, low-maintenance living space. Two double bedrooms and a contemporary bathroom suit sharers or a small family.
The property sits on a long lease (approximately 993 years remaining) with no ground rent or service charge and is offered with no onward chain — straightforward tenure for buyers and investors. Off-street parking, a small garden and excellent local transport links (bus, rail, nearby A30/M5) add daily convenience.
Notable considerations: this is a first-floor flat accessed by an internal staircase, so it isn’t step-free. Overall size is average for a two-bedroom maisonette, so built-in storage and room layouts are modest. The tenure is leasehold (long lease) — buyers should note that and confirm specifics with their solicitor.
1 bedroom maisonette for sale in Mayfield Way, Cranbrook, EX5 7BE, EX5 — £160,000 • 1 bed • 1 bath • 487 ft²
2 bedroom apartment for sale in Shareford Way, Cranbrook, EX5 — £180,000 • 2 bed • 1 bath • 678 ft²
2 bedroom maisonette for sale in Thornpark Rise, Whipton, Exeter, Devon, EX1 — £170,000 • 2 bed • 1 bath • 549 ft²
2 bedroom maisonette for sale in Thornpark Rise, Exeter EX1 3HN, EX1 — £190,000 • 2 bed • 1 bath • 850 ft²
2 bedroom maisonette for sale in Margaret Road, Exeter, EX4 — £220,000 • 2 bed • 1 bath • 754 ft²
2 bedroom ground floor flat for sale in Barling Walk, Cranbrook, EX5 7JP, EX5 — £195,000 • 2 bed • 1 bath • 734 ft²






































































































































