**Standout Features:**
- Non-estate, quiet lane location
- Generous 175' total plot depth, with a 100' south-easterly facing rear garden
- Scope for future extensions (subject to consent)
- Newly renovated kitchen/dining area with modern finishes
- Triple aspect sitting room with feature fireplace
- Off-road parking, garage, and additional outbuilding
- Excellent local amenities and schools nearby
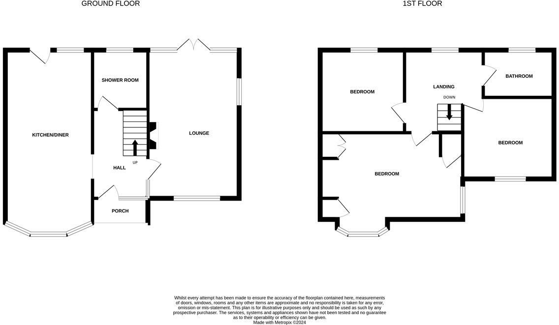
This recently renovated three-bedroom detached house in a peaceful Chelmsford setting offers a perfect blend of comfort and potential. Nestled at the end of a lane surrounded by fields, the property boasts an expansive plot, including a stunning 100' south-easterly facing garden—ideal for family gatherings or tranquil evenings outdoors. The spacious triple aspect sitting room invites natural light, while the modern kitchen/dining area is a chef's dream, featuring pale blue units and quartz countertops.
With off-road parking and a versatile garage, there's ample space to store vehicles or equipment. Though the property has undergone significant improvements, the large garden and plot size present opportunities for future extensions, appealing to those seeking to expand. Families will appreciate the proximity to highly-rated schools, including the outstanding King Edward VI Grammar School. This unique offering in a very low-crime, affluent area is a rare find—don’t miss your chance to make it your own! Viewing is highly recommended to truly appreciate all this property has to offer.
4 bedroom detached house for sale in Russets, Gutters Lane, Broomfield, Chelmsford, CM1 — £795,000 • 4 bed • 2 bath • 1839 ft²
4 bedroom house for sale in Widford Road, Chelmsford, CM2 — £495,000 • 4 bed • 2 bath • 1093 ft²
4 bedroom detached house for sale in Beachs Drive, Chelmsford, CM1 — £587,500 • 4 bed • 1 bath • 1278 ft²
3 bedroom semi-detached house for sale in Keene Way, Chelmsford, CM2 — £445,000 • 3 bed • 1 bath • 1008 ft²
3 bedroom semi-detached house for sale in Chelmer Road, Chelmsford, CM2 — £575,000 • 3 bed • 1 bath • 1172 ft²
4 bedroom detached house for sale in Galleywood Road, Chelmsford, CM2 — £575,000 • 4 bed • 2 bath • 1087 ft²














































































































































































































































































































































































