CM14 5FR - 1 bed victorian gallery flat in The Galleries, CM14 5FR

View on Property Piper

1 bedroom apartment for sale in The Galleries, Brentwood, CM14

Summary - 2 Pope Court, The Galleries, Warley CM14 5FR

1 bed 1 bath Apartment

Bright one-bedroom with soaring ceilings and allocated parking, ready to move into.
Grade II listed Victorian Gothic building with striking period features
Set within the converted Galleries development, this ground-floor one-bedroom flat combines authentic Victorian Gothic stature with contemporary convenience. The standout 13ft-high ceilings and large arched bedroom window give an immediate sense of space and light, while an open-plan living/kitchen layout and modern bathroom support everyday living.

Practical features include an allocated off-street parking space, communal landscaped gardens and a long lease of 156 years. The property is chain free and presented for immediate occupation, making it a straightforward option for a first-time buyer seeking character close to Brentwood transport links.

There are important considerations: the building is Grade II listed, which will limit alterations and may complicate some changes. Heating is by electric room heaters — this can mean higher running costs compared with gas central heating. Service charge (£2,300pa) and ground rent (£350pa) apply, and local broadband speeds are reported slow. The surrounding area records higher-than-average crime, so prospective buyers should verify security arrangements and insurance implications.

Property Details

Image Descriptions

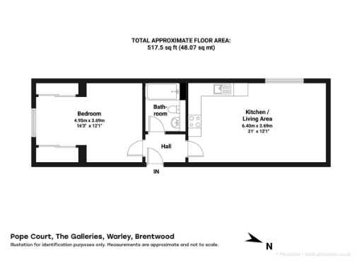
Floorplan Description

Rooms

Textual Property Features

Target Audience

AI Tags

Detected Visual Features

EPC Details

Nearby Schools

Nearest Bars And Restaurants

,,,,}

Nearest General Shops

,,}

Nearest Grocery shops

,,}

Nearest Supermarkets

,,}

Nearest Religious buildings

,,}

Nearest Medical buildings

,,,}

Nearest Airports

,}

Nearest Leisure Facilities

,,,,}

Nearest Tourist attractions

,,}

Nearest Train stations

,,,,}

Nearest Bus stations and stops

,,,,}

Nearest Hotels

,,}

Tags

Local Market Stats

AirBnB Data

Similar Properties

Meta

High Res Images

Compatible Images

Low res Images

Thumbnails

Raw Images

High Res Floorplan Images

Compatible Floorplan Images

Low res Floorplan Images

FloorplanImages Thumbnail

Raw Floorplan Images