Newly renovated three-bed detached near Trentham, great schools and commuter links.
Three-bedroom detached house, newly renovated throughout
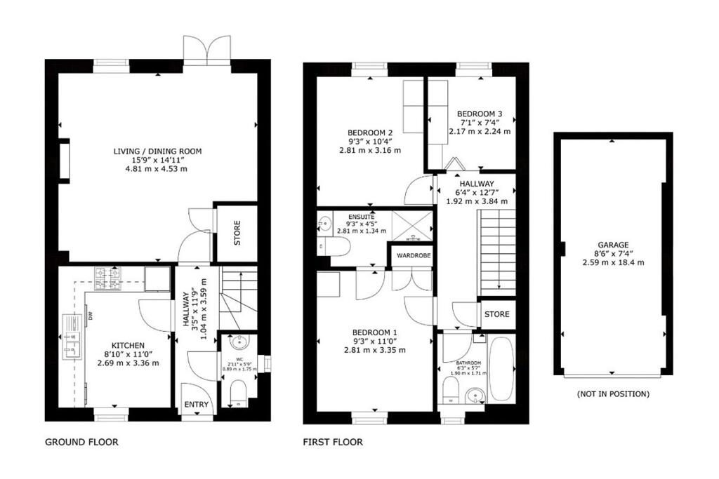
Light, modern and freshly renovated, this three-bedroom detached home sits in the popular Trentham area and suits growing families, first-time buyers or downsizers seeking move-in readiness. The ground floor offers a generous lounge-diner and a well-equipped breakfast kitchen with integrated appliances, while upstairs the master bedroom benefits from an en-suite and two further bedrooms share a family bathroom.
Externally the property provides off-road parking, a single garage and a low-maintenance enclosed rear garden — practical for family life and weekend ease. The location scores on schooling and amenities: highly regarded primary and secondary schools are within easy reach, local shops and supermarkets are nearby, and Trentham Estate plus commuter links (A34/A500/M6) are convenient for travel and leisure.
Buyers should note a medium flood risk for the area and that the wider neighbourhood is classified with higher deprivation indicators despite a local low crime record. The house is newly renovated and presented in excellent condition, but purchasers may wish to check insurance implications and flood mitigation measures before committing.
Overall this is a well-proportioned, contemporary family home offering straightforward, low-maintenance living in a sought-after location close to schools, green spaces and transport links.
3 bedroom detached house for sale in Ovaldene Way, Stoke-On-Trent, ST4 — £295,000 • 3 bed • 2 bath • 910 ft²
3 bedroom detached house for sale in Harold Evans Close, Stoke On Trent, ST4 8ZN, ST4 — £259,500 • 3 bed • 1 bath • 840 ft²
3 bedroom semi-detached house for sale in Imandra Close, Stoke-on-Trent, Staffordshire, ST4 — £240,000 • 3 bed • 2 bath
3 bedroom detached house for sale in Trentham,
Stoke-On-Trent,
ST4 8DP, ST4 — £359,000 • 3 bed • 1 bath • 833 ft²
3 bedroom semi-detached house for sale in The Mead, Trentham, ST4 — £295,000 • 3 bed • 1 bath • 897 ft²
3 bedroom semi-detached house for sale in Chessington Crescent, Trentham, ST4 — £245,000 • 3 bed • 1 bath • 807 ft²


























































































































































































































































