ML10 6RH - 4 bedroom detached house for sale in Strathaven, South Lana…

View on Property Piper

4 bedroom detached house for sale in Strathaven, South Lanarkshire, ML10

Summary - WEE WESTLINBANK FARM, STRATHAVEN ML10 6RH

4 bed 3 bath Detached

**Standout Features:**
- Large detached Victorian farmhouse built in 1897, recently renovated
- Extensive grounds of 1.54 acres, offering potential for grazing or small-scale agriculture
- Spacious interiors with original features and an airy, bright ambiance
- On-site established cattery business with capacity for approximately 30 cats
- Additional outbuildings for various uses, including a potential home office
- Excellent mobile and broadband connectivity

**Potential Downsides:**
- Situated in an area classified as 'very deprived'
- Council Tax Band F, which may need consideration for budgeting

Discover the charm and tranquility of Wee Westlinbank Farm, a beautifully extended Victorian farmhouse nestled in the picturesque village of Gilmourton. Set within 1.54 acres of mature grounds, this property marries the comforts of rural living with the potential for an entrepreneurial venture, thanks to the established cattery business that could provide supplementary income. Inside, enjoy spacious living areas, a bright open-plan layout, and four versatile bedrooms, ideal for family living or guests. The property retains much of its original character, emphasized by its inviting atmosphere and carefully designed spaces.

Perfectly positioned for privacy yet accessible to nearby urban conveniences, this rural retreat is not just a home but a lifestyle opportunity. With ample outdoor space suitable for equestrian use, gardens, or simply enjoying nature, this property is a rare find in today's market. Don't miss your chance to secure this extraordinary home, where work, leisure, and nature come together harmoniously.

Property Details

Image Descriptions

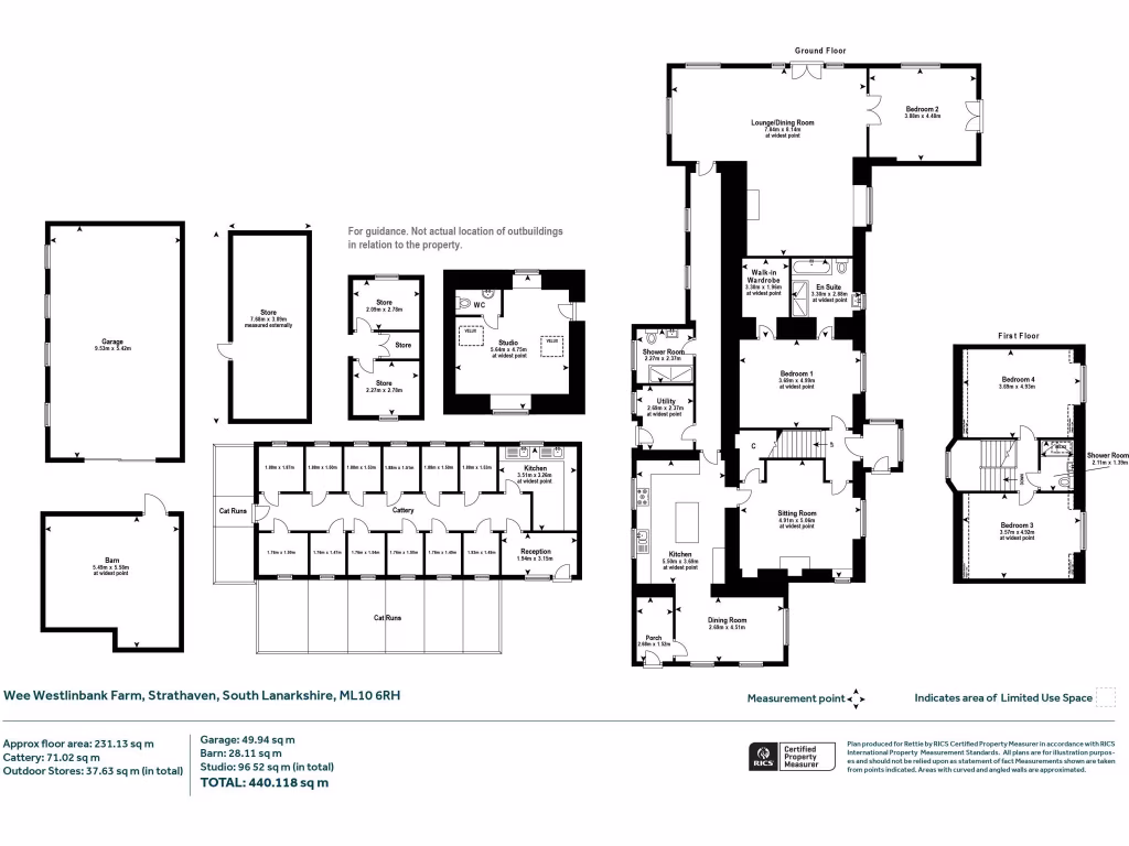
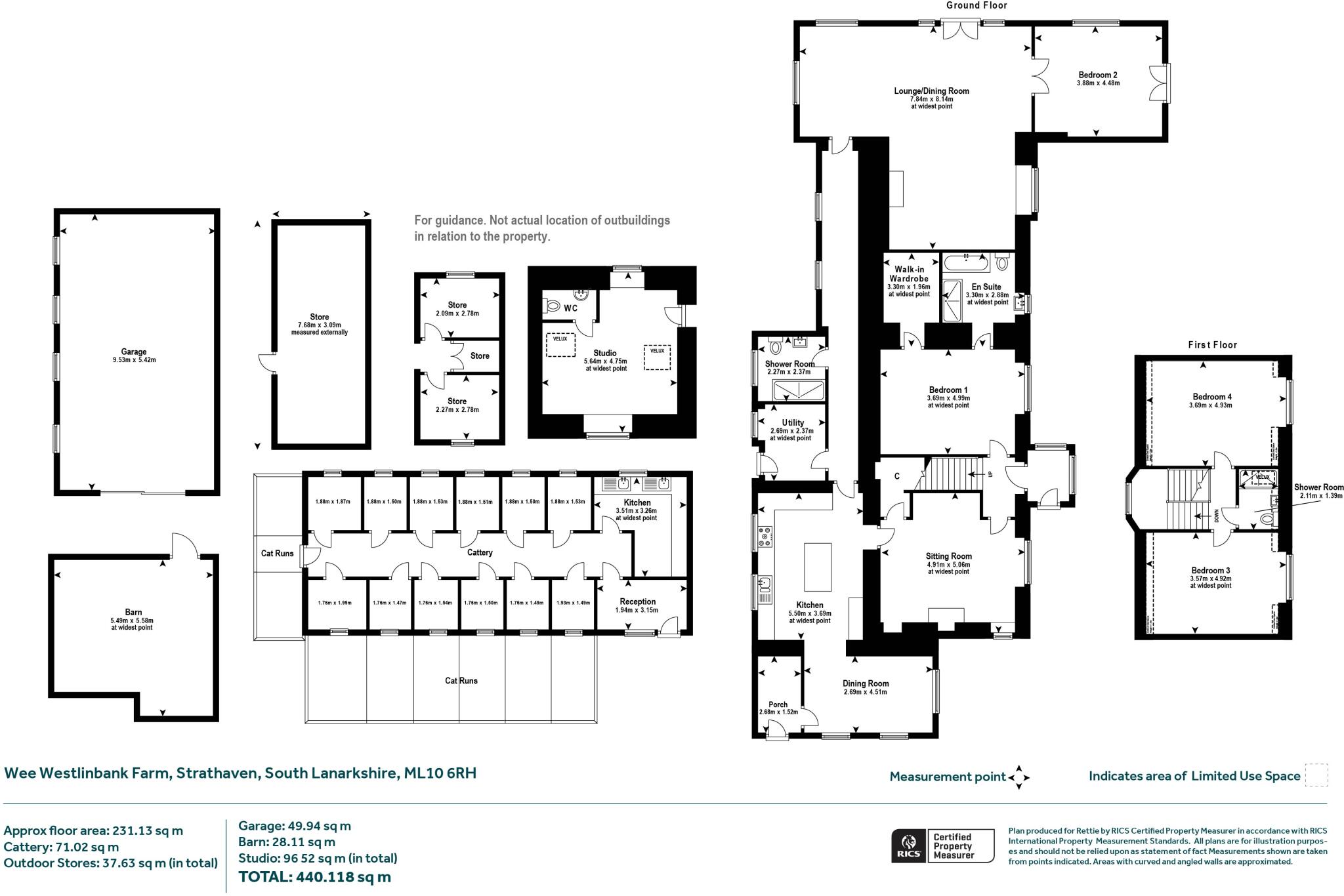
Floorplan Description

Rooms

Textual Property Features

Detected Visual Features

Nearest Bars And Restaurants

,,,,}

Nearest General Shops

,,}

Nearest Grocery shops

,,}

Nearest Supermarkets

,,}

Nearest Religious buildings

,,}

Nearest Medical buildings

,,,}

Nearest Airports

,}

Nearest Leisure Facilities

,,,,}

Nearest Tourist attractions

,,}

Nearest Train stations

,,,,}

Nearest Bus stations and stops

,,,,}

Nearest Hotels

,,}

Tags

Local Market Stats

Similar Properties

Meta

High Res Images

Compatible Images

Low res Images

Thumbnails

Raw Images

High Res Floorplan Images

Compatible Floorplan Images

Low res Floorplan Images

FloorplanImages Thumbnail

Raw Floorplan Images