PR25 4NX - 3 bedroom terraced house for sale in George Street, Leyland…

View on Property Piper

3 bedroom terraced house for sale in George Street, Leyland, PR25

Summary - 6 GEORGE STREET LEYLAND PR25 4NX

3 bed 1 bath Terraced

**Standout Features:**
- Charming three-bedroom mid-terrace home
- Quiet no-through road location
- Excellent transport links, including Leyland train station
- Spacious kitchen diner with integrated oven
- Utility room with potential garage conversion
- Private, low-maintenance rear yard
- On-road parking available
- Ideal for first-time buyers

**Summary Description:**
Discover this charming three-bedroom mid-terrace home, perfect for first-time buyers or small families, situated on a peaceful no-through road in Leyland. At approximately 968 sq. ft., this property boasts a generously sized living room featuring a classic fireplace, and a well-appointed kitchen diner that's ideal for family meals. The utility room adds convenience and offers the option to convert back into a garage, maximizing the property's potential.

Upstairs, enjoy three well-proportioned bedrooms, with flexibility for various uses such as a home office or nursery. The family bathroom is fitted with a shower over the bath for added practicality. Outside, the private rear yard is low-maintenance, complemented by well-kept flower beds and a useful outbuilding for additional storage.

With an EPC rating of D, this home combines space, comfort, and an attractive location near local amenities and transport links, making it an invaluable opportunity in today’s market. Don't miss out on viewing this lovely property!

Property Details

Brochure Descriptions

Image Descriptions

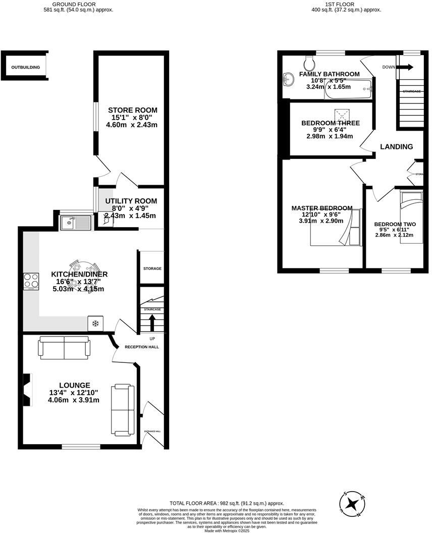
Floorplan Description

Rooms

Textual Property Features

Detected Visual Features

EPC Details

Nearby Schools

Nearest Bars And Restaurants

,,,,}

Nearest General Shops

,,}

Nearest Grocery shops

,,}

Nearest Supermarkets

,,}

Nearest Religious buildings

,,}

Nearest Medical buildings

,,,}

Nearest Leisure Facilities

,,,,}

Nearest Tourist attractions

,,}

Nearest Train stations

,,,,}

Nearest Bus stations and stops

,,,,}

Nearest Hotels

,,}

Tags

Local Market Stats

Similar Properties

Meta

High Res Images

Compatible Images

Low res Images

Thumbnails

Raw Images

High Res Floorplan Images

Compatible Floorplan Images

Low res Floorplan Images

FloorplanImages Thumbnail

Raw Floorplan Images