Spacious project with parking and a large garden for improvement.
No upward chain — freehold four-bedroom semi-detached property
Drive parking for several cars; gated side access to plot
Large, overgrown rear garden with extension potential
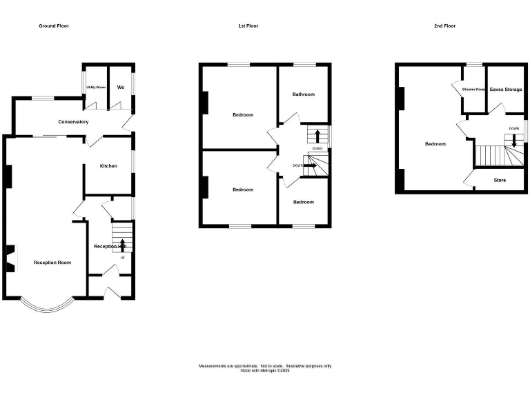
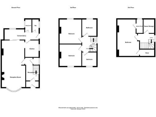
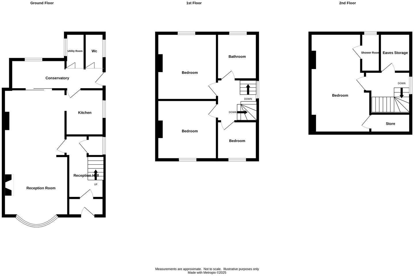
Loft bedroom with ensuite; two reception rooms and verandah
Requires full modernisation; EPC D and dated interior throughout
Electric storage heaters; likely higher running costs than gas
Cavity walls assumed uninsulated — energy-improvement opportunity
Located in a very deprived area; practical local amenities and good schools nearby
This traditional 1930s semi-detached house offers four bedrooms, generous parking and a large rear garden — all with no upward chain. It’s a solid freehold property that will suit a buyer willing to invest time and money to modernise and add value.
Accommodation includes two reception rooms, kitchen, ground-floor utility/WC, three first-floor bedrooms with a family bathroom, plus a loft bedroom with an ensuite. Double glazing has been installed (post-2002) and the plot provides scope for extension or reconfiguration, subject to consents.
Key considerations: the home currently requires comprehensive modernisation and uses electric storage heaters, which can be costly to run. The cavity walls are assumed uninsulated and the EPC is D — these are realistic renovation targets if you plan to improve energy performance and reduce running costs.
Set near local schools and day-to-day amenities, the property is priced to reflect its condition and potential. It will appeal to buyers looking for a renovation project or investors seeking a period home with scope to increase value.
3 bedroom semi-detached house for sale in HALESOWEN, Witley Avenue, B63 — £260,000 • 3 bed • 1 bath • 941 ft²
3 bedroom semi-detached house for sale in QUINTON, Max Road, B32 — £240,000 • 3 bed • 1 bath • 898 ft²
3 bedroom semi-detached house for sale in Coleraine Road, Great Barr, Birmingham, B42 1LN, B42 — £230,000 • 3 bed • 1 bath
3 bedroom semi-detached house for sale in Badsey Road, Oldbury, B69 — £195,000 • 3 bed • 1 bath • 554 ft²
3 bedroom semi-detached house for sale in Bristnall Hall Road, Oldbury, West Midlands, B68 — £175,000 • 3 bed • 1 bath • 764 ft²
3 bedroom semi-detached house for sale in Hugh Road, Smethwick, West Midlands, B67 — £240,000 • 3 bed • 2 bath • 1055 ft²










































