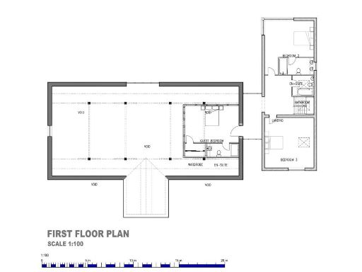
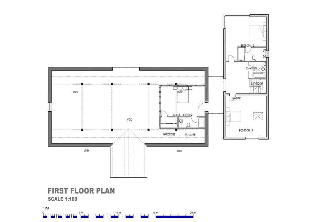
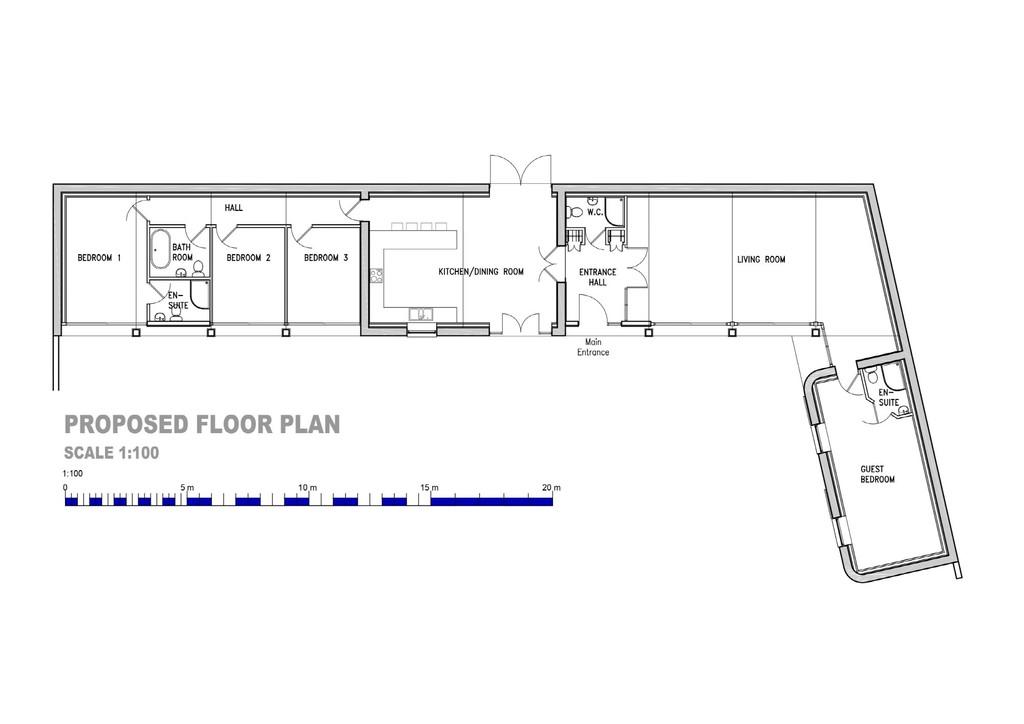
**Standout Features:**
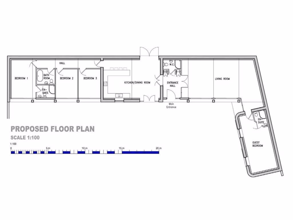
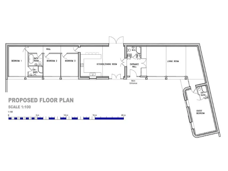
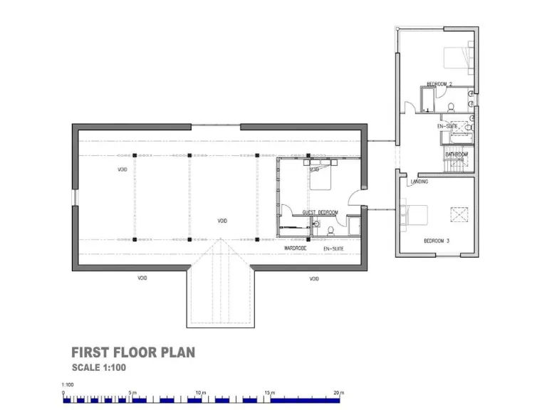
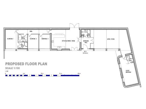
- Development Opportunity with Full Planning Consent for five residential units
- Substantial complex of traditional Norfolk red brick barns with historic charm
- Prime location in the popular village of Hemsby, close to amenities and beach
- Expansive site area of approximately 1.79 acres
- Diverse plot options, including a Grade II Star listed barn
- Excellent potential for custom living spaces, perfect for families or investors
**Summary:**
Discover Home Farm Barns, a rare development opportunity nestled in the heart of Hemsby. This expansive site of approximately 1.79 acres features a collection of traditional Norfolk barns, each holding unique charm and extensive renovation potential. With full planning consent already in place for the transformation into five residential units, including a stunning Grade II Star listed barn, the possibilities for bespoke living accommodations abound.
The central location offers convenient walking access to local amenities, including schools, shops, and the beautiful Hemsby beach, making it a desirable investment for families or those looking to establish a retreat in a tranquil rural setting. While the project presents some challenges typical of converting historic structures, the potential for substantial returns on investment is significant. Cash in on the opportunity to create modern living spaces that seamlessly blend rustic elegance with contemporary comforts. Don’t miss out on this exceptional chance to shape your vision into reality!



























































