LE3 8HF - 5 bed spacious five bedroom detached in Leicester Road, LE3…

View on Property Piper

5 bedroom detached house for sale in Leicester Road, Glenfield, Leicester, LE3

Summary - 45 LEICESTER ROAD GLENFIELD LEICESTER LE3 8HF

5 bed 3 bath Detached

Refurbished five-double-bedroom detached on a large gated plot — planning permission granted for further space.
Five double bedrooms, two luxury en-suites and family shower room
High-quality recent refurbishment throughout, ready to move into
Large gated plot with block-paved driveway and electric roller garage door
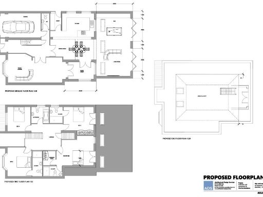
Living/dining kitchen, utility, ground-floor WC and integral garage access
Planning permission granted (2020) for extension and loft conversion (ref 19/1593/HH)
Chain free; Energy Rating C; mains gas boiler and double glazing
Property built 1930–1949 — refurbished but older construction may need long-term upkeep
Council Tax Band D; crime level described as average
Set on a large gated plot in Glenfield, this substantially refurbished five-double-bedroom detached home is ready to move into. The ground floor offers a generous lounge/diner, a living/dining kitchen with utility, ground-floor WC and integral garage access. Two bedrooms have luxury en‑suites alongside a contemporary family shower room. The finish is modern throughout and the property benefits from double glazing and mains gas central heating (Energy Rating C).

The layout suits a growing family or those needing flexible space: the current open-plan lounge/diner was remodelled from two separate reception rooms and can be restored if preferred. Planning permission was granted in 2020 (ref: 19/1593/HH) for a further extension and loft conversion, providing clear potential to increase living space. The large gated driveway and electric roller garage door provide secure parking and useful storage.

Practical points are straightforward: the house is chain free and lies in a very affluent area with fast road links to the A50/A46, nearby schools (including Good and Outstanding-rated primaries) and Glenfield Hospital. Broadband and mobile signal are strong and there is no flood risk. Council Tax is band D and crime is described as average for the area.

Buyers should note the property’s age (circa 1930–1949) despite the recent high-quality refurbishment; older construction can carry maintenance considerations over time. Overall, this detached home offers a blend of period footprint, contemporary finish and room to extend, making it a practical family home with scope to add value.

Property Details

Brochure Descriptions

Image Descriptions

Floorplan Description

Rooms

Textual Property Features

Target Audience

AI Tags

Detected Visual Features

EPC Details

Nearby Schools

Nearest Bars And Restaurants

,,,,}

Nearest General Shops

,,}

Nearest Grocery shops

,,}

Nearest Supermarkets

,,}

Nearest Religious buildings

,,}

Nearest Medical buildings

,,,}

Nearest Airports

,}

Nearest Leisure Facilities

,,,,}

Nearest Tourist attractions

,,}

Nearest Train stations

,,,,}

Nearest Bus stations and stops

,,,,}

Nearest Hotels

,,}

Tags

Local Market Stats

AirBnB Data

Similar Properties

Meta

High Res Images

Compatible Images

Low res Images

Thumbnails

Raw Images

High Res Floorplan Images

Compatible Floorplan Images

Low res Floorplan Images

FloorplanImages Thumbnail

Raw Floorplan Images