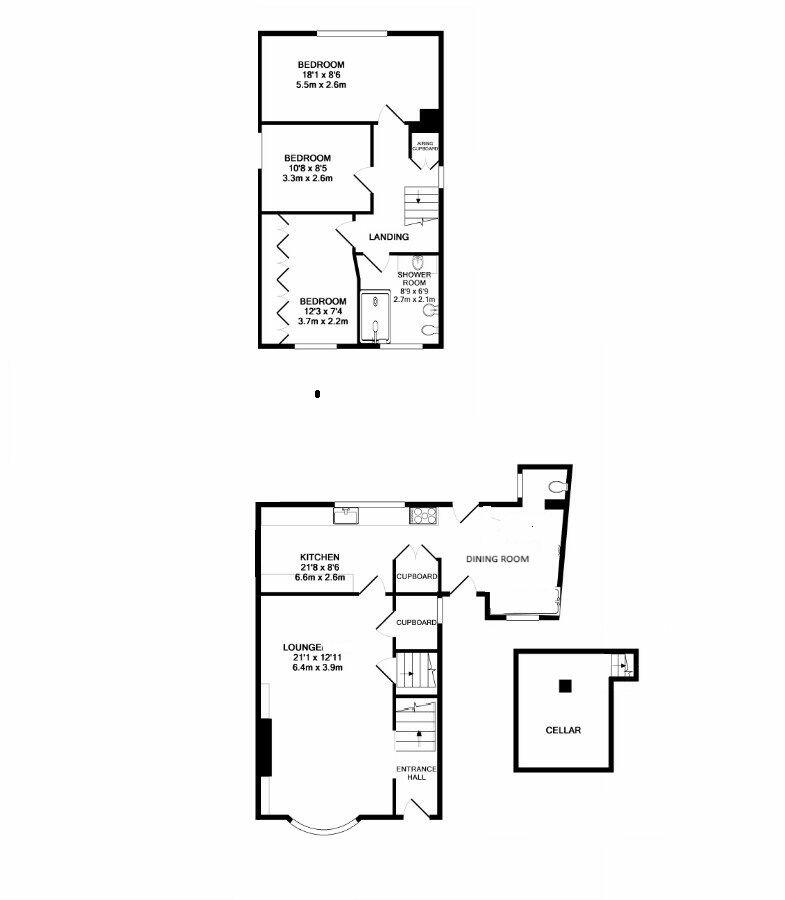
**Standout Features:**
- Charming three-bedroom stone cottage in a picturesque village setting
- Modern kitchen diner with ample storage and contemporary appliances
- Spacious, inviting living room with rustic beams and an open fire
- Low-maintenance raised rear garden, perfect for relaxation
- Cellar access for additional storage
- Excellent transport links and amenities within easy reach
**Potential Concerns:**
- Average-sized rooms, possibly limiting for larger families
- Stone walls lack insulation; potential for maintenance or energy efficiency upgrades
**Summary:**
Discover the charm of this beautifully maintained three-bedroom stone cottage in the sought-after village of Wymondham. This delightful home boasts a modern kitchen diner, a spacious living room with rustic character, and a convenient downstairs WC. Upstairs, you’ll find two comfortable double bedrooms, a single bedroom, and a modern shower room. The low-maintenance gardens provide a peaceful outdoor retreat, perfect for families or professionals seeking tranquility.
Living in Wymondham offers not just a cozy home but a vibrant community with essential amenities, including a well-regarded pub, primary school, and boutique shops nearby. For outdoor enthusiasts, Rutland Water is just a short drive away, offering leisure activities galore. With excellent transport links to Grantham and direct access to the A1, this property is ideal for commuters. Don’t miss your chance to own a piece of countryside charm—homes like this don’t stay on the market long!
3 bedroom cottage for sale in Church Lane, Wymondham, Melton Mowbray, LE14 — £350,000 • 3 bed • 1 bath • 1220 ft²
3 bedroom cottage for sale in Church Lane, Wymondham, Melton Mowbray, LE14 — £495,000 • 3 bed • 1 bath • 1836 ft²
3 bedroom detached house for sale in Top Road, Croxton Kerrial, Grantham, NG32 — £300,000 • 3 bed • 1 bath
4 bedroom detached house for sale in Spring Lane, Wymondham, LE14 — £850,000 • 4 bed • 3 bath • 2711 ft²
2 bedroom semi-detached house for sale in Edmondthorpe Road, Wymondham, Melton Mowbray, LE14 — £225,000 • 2 bed • 1 bath • 970 ft²
4 bedroom house for sale in Stone House, Towns Lane, Goadby Marwood, LE14 — £450,000 • 4 bed • 2 bath • 1173 ft²










































































