Spacious period home with planning consent for two extra bedrooms.
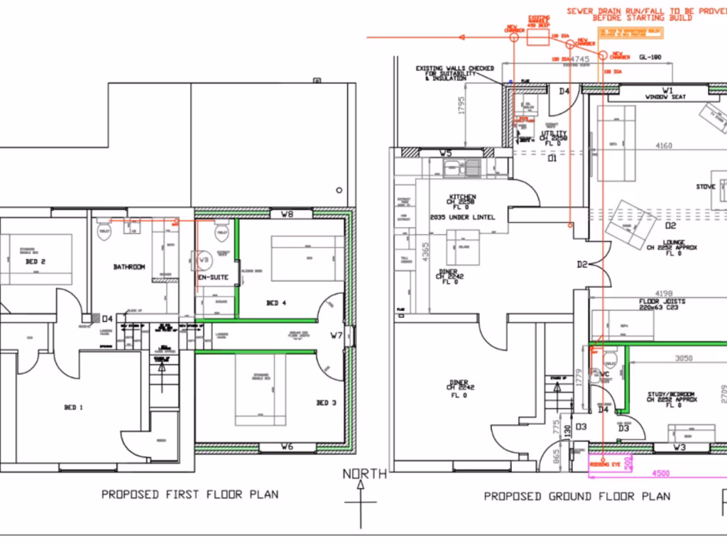
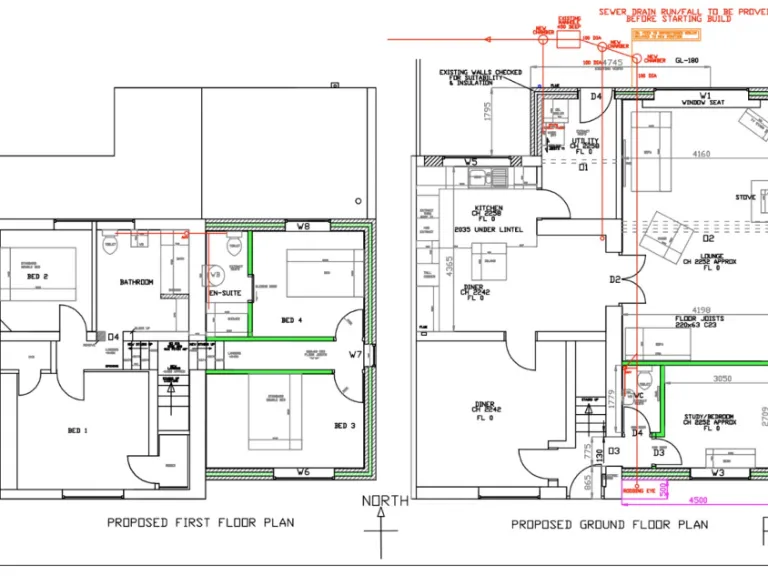
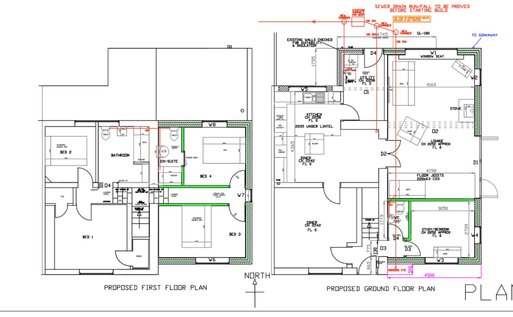
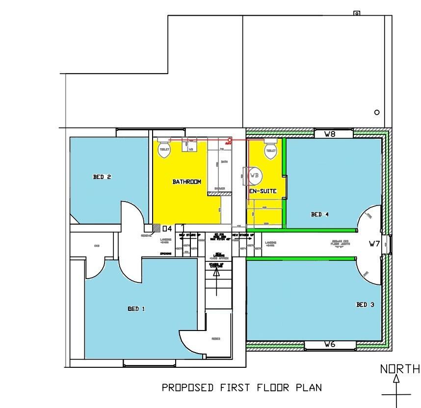
- Planning approval for extra storey: two bedrooms and one bathroom
- Large plot approximately 0.25 acres with open countryside views
- Stunning sitting room with triple-glazed roof lantern and bifold doors
- Ground-floor bedroom/home office, separate dining room, utility and WC
- Extensive gated parking and useful outbuildings for storage or conversion
- Oil-fired central heating; EPC D — energy improvements likely needed
- Slow broadband and average mobile signal in hamlet location
- Semi-detached with character; extension requires building works to complete
An extended Duke of Sutherland cottage sitting on about 0.25 acres, this three-bedroom semi-detached home blends period character with practical modern upgrades. The sitting room is a standout space, brightened by a triple-glazed roof lantern and triple-glazed bifold doors that connect living space to the large garden and open countryside views. Useful outbuildings and extensive gated parking add real outdoor utility.
The house is offered with planning approval for an additional storey to create two further bedrooms and a bathroom, a clear value-driving opportunity for a growing family or as future resale enhancement. Internally there’s a breakfast kitchen, separate dining room, ground-floor bedroom/home office, utility/boot room and ground-floor WC — practical rooms for everyday family life.
Buyers should note a few practical considerations: heating is oil-fired with radiator distribution and the EPC rating is D, so some energy upgrades may be advisable. Broadband speeds are slow and mobile signal average — typical for a hamlet setting — which may be important for remote working needs. The property will require finishing works to implement the approved extension and any desired retrofit improvements.
Overall this is a characterful family house in an affluent, low-crime rural neighbourhood with strong schools nearby and easy access to Newport and Telford. The combination of a generous plot, planning permission and genuine period charm makes this a compelling option for buyers seeking space and future potential; a viewing is recommended to appreciate the plot and accommodation fully.
4 bedroom detached house for sale in Flashbrook, Newport, TF10 — £670,000 • 4 bed • 3 bath • 2365 ft²
4 bedroom detached house for sale in 5 Cheswell Cottages, Newport, TF10 — £699,950 • 4 bed • 2 bath • 1647 ft²
4 bedroom detached house for sale in Crudgington Green, Crudgington, Telford, TF6 — £645,000 • 4 bed • 2 bath • 2530 ft²
3 bedroom detached house for sale in Newport Road, Edgmond, TF10 — £550,000 • 3 bed • 2 bath • 1328 ft²
5 bedroom detached house for sale in The Common, Edgmond, TF10 — £850,000 • 5 bed • 3 bath • 2433 ft²
3 bedroom semi-detached house for sale in Humber Lane, Telford, TF2 — £325,000 • 3 bed • 1 bath • 887 ft²






































































































































































