Move-in ready, energy-smart 1930s terrace close to Mold town centre.
Refurbished to a high standard throughout
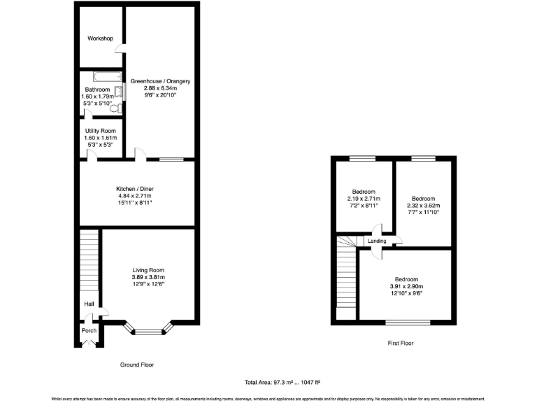
Three generous bedrooms, spacious bay-front lounge
Large modern kitchen/diner with breakfast bar and pantry
Solar panels fitted to reduce electricity costs
Covered rear area usable as orangery/greenhouse
Small enclosed garden and compact plot size
Workshop with light and power included
Located within walking distance of town and schools
This recently renovated three-bedroom terrace on Charles Street offers a ready-to-move-in home for a first-time buyer seeking modern finishes without the DIY. The refurbishment delivers a bright lounge with bay window, a spacious contemporary kitchen/diner, a useful utility room and a high-quality bathroom — all arranged over two floors and totalling about 1,047 sq ft.
Energy running costs are potentially lower than typical electric-heated homes thanks to roof-mounted solar panels and new electric storage heaters tied to an Economy 7 arrangement. Practical extras include a covered rear area that works as an all-weather orangery/greenhouse, plus a small workshop with power — useful for hobbies or additional storage.
Location is convenient: within easy walking distance of Mold town centre, large Tesco and local schools. The property is freehold, Council Tax Band C, and sits in a solid 1930s build that retains period character while having modern, neutral finishes throughout.
Buyers should note material factors: the plot and garden are small, and the home uses electric heating rather than gas. The wider area records higher levels of deprivation, which may affect local services and future resale. As with any purchase, appliances and services have not been independently tested, so a buyer survey is recommended.
3 bedroom house for sale in Moelwyn Close, CH7 6SP, CH7 — £239,995 • 3 bed • 1 bath • 1176 ft²
3 bedroom house for sale in Archway, Mold, Flintshire, Clwyd, CH7 — £185,000 • 3 bed • 1 bath • 1520 ft²
3 bedroom house for sale in Llys Tudela, Mold, Flintshire, Clwyd, CH7 — £229,999 • 3 bed • 1 bath • 732 ft²
3 bedroom detached house for sale in Ffordd Glyn, Mold, Flintshire, Clwyd, CH7 1GZ, CH7 — £372,000 • 3 bed • 3 bath
2 bedroom house for sale in Gordon Terrace, King Street, Mold, CH7 1LD, CH7 — £250,000 • 2 bed • 2 bath • 1031 ft²
3 bedroom detached house for sale in Llys Y Foel, Mold, CH7 1EX, CH7 — £350,000 • 3 bed • 3 bath • 2239 ft²






































































































































