Compact single‑level home with garage, garden and conservatory for easy living.
Chain free two bedroom semi-detached bungalow
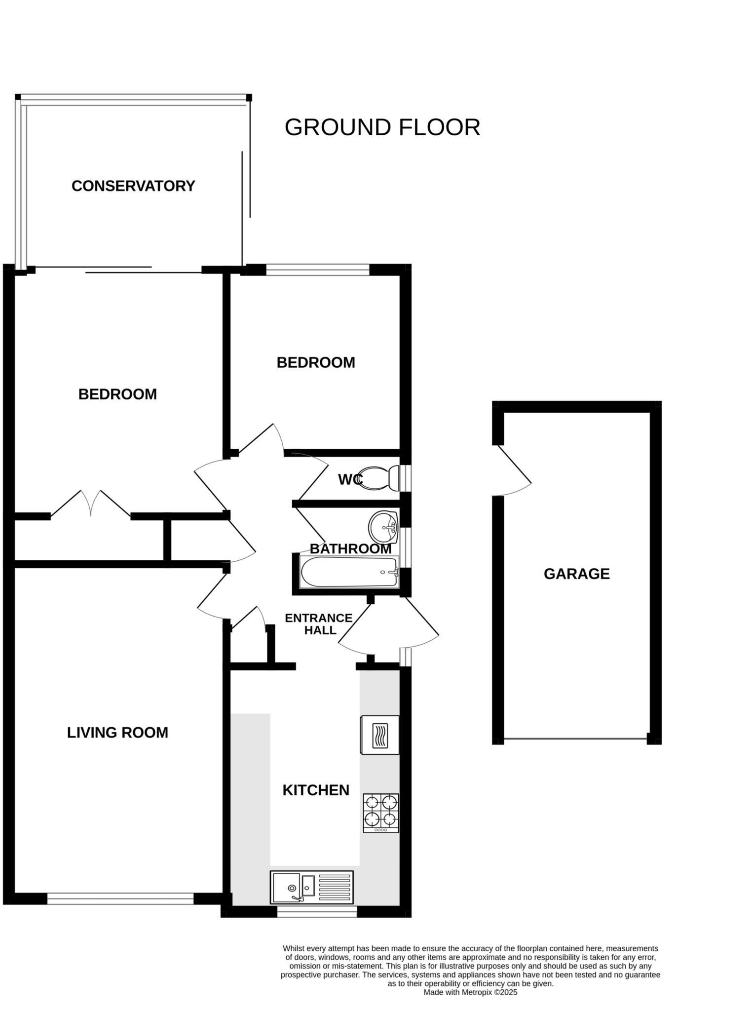
Set at the end of a quiet cul-de-sac, this two-bedroom semi-detached bungalow offers practical single‑level living with a secluded rear garden, driveway and powered garage. Chain free and offered freehold, it suits buyers seeking an easy-to-manage home close to local shops, bus routes and schools. The conservatory adds extra living space and natural light, while double glazing and gas central heating provide year-round comfort.
At around 601 sq ft the accommodation is compact: sitting room, kitchen, two double bedrooms, bathroom, separate WC and conservatory. The plot is described as decent for the property size, with lawn and patio that will appeal to those wanting low-maintenance outdoor space. EPC C and Council Tax Band C are practical benefits for running costs.
The bungalow dates from the late 1960s–1970s and presents good scope for modernization and cosmetic updating to increase value or tailor finishes. Broadband speeds are average and the area has excellent mobile signal. There is no recorded flood risk and the property is freehold. Prospective buyers should note fixtures, fittings and services have not been tested and should be independently checked before purchase.
2 bedroom detached bungalow for sale in Magnolia Walk, Eastbourne, BN22 0SR, BN22 — £265,000 • 2 bed • 1 bath • 614 ft²
2 bedroom bungalow for sale in Nightingale Close, Eastbourne, East Sussex, BN23 — £279,950 • 2 bed • 1 bath • 1088 ft²
2 bedroom semi-detached bungalow for sale in Bancroft Road, Bexhill-on-Sea, TN39 — £325,000 • 2 bed • 1 bath
2 bedroom detached bungalow for sale in Winchester Way, Eastbourne, BN22 0JU, BN22 — £475,000 • 2 bed • 1 bath • 1195 ft²
2 bedroom detached bungalow for sale in Berkeley Walk, Eastbourne, BN23 7PS, BN23 — £310,000 • 2 bed • 1 bath • 620 ft²
2 bedroom bungalow for sale in Lapwing Close, Eastbourne, BN23 — £315,000 • 2 bed • 1 bath • 763 ft²


































































































