Central family house with extension potential near station and shops.
Three-bedroom Edwardian bay-front terrace with period features
A handsome Edwardian bay-front terrace offering characterful family living just south of Leamington Spa station. The through lounge-diner, exposed floorboards and fitted alcove storage retain period detail while the enlarged kitchen and landscaped rear provide practical everyday space. The boarded loft with Velux and useful cellar add valuable storage for a town-centre home.
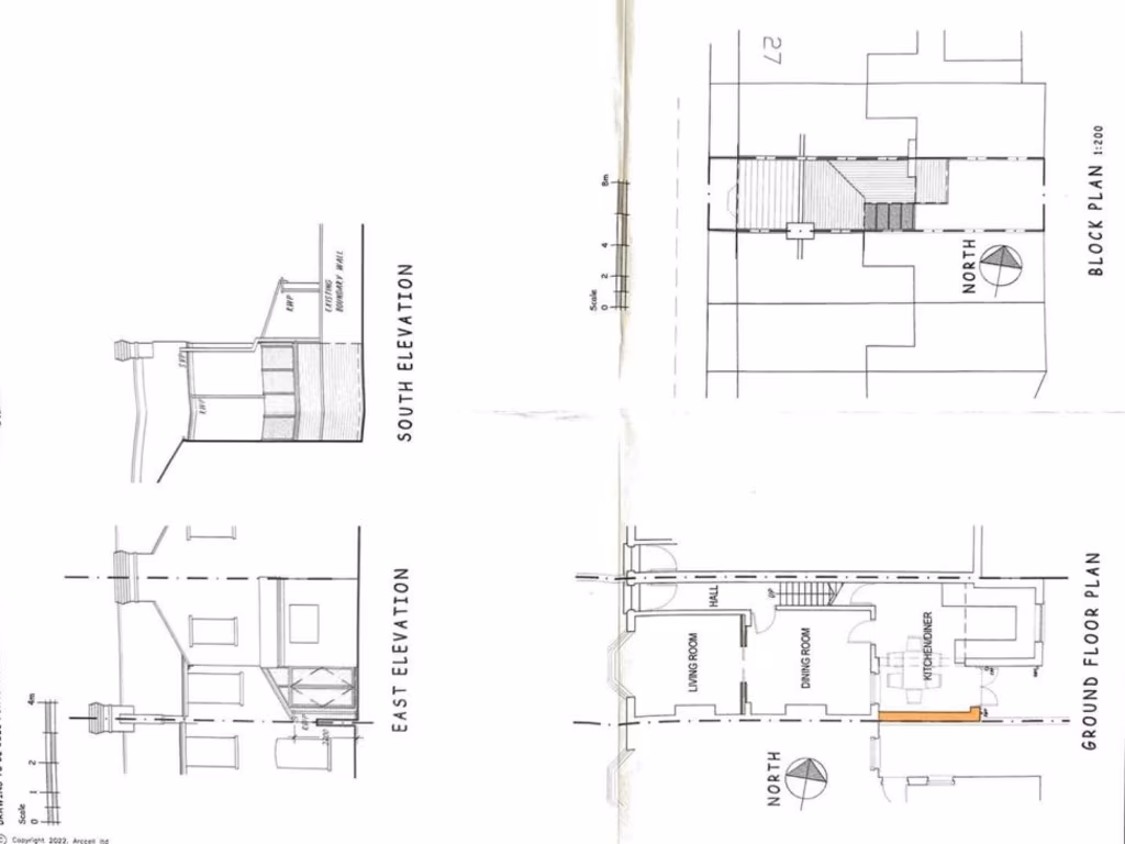
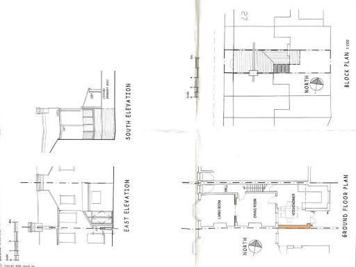
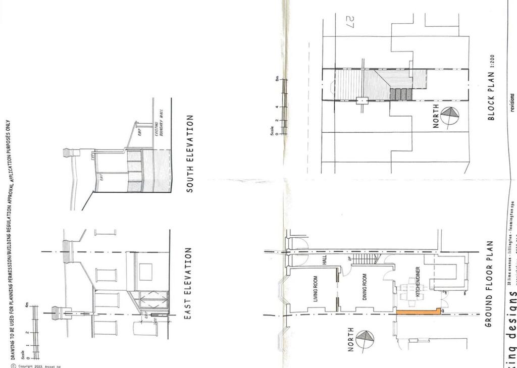
This freehold house is well placed for city amenities, parks and good local schools, with the station only a short walk away — ideal for commuters and families wanting easy access to town. Architect-designed plans for a glazed side-return kitchen extension are included, offering clear potential to enlarge ground-floor living, though planning consent is still pending.
Buyers should note the compact rear plot and single upstairs bathroom serving three bedrooms. The property is presented in good order but offers scope for cosmetic updating or to proceed with the proposed extension if permission is granted. Practical advantages include fast broadband, excellent mobile signal and no flood risk.
2 bedroom terraced house for sale in Gordon Street, Leamington Spa, CV31 — £335,000 • 2 bed • 1 bath • 807 ft²
3 bedroom terraced house for sale in Plymouth Place, Leamington Spa, Warwickshire, CV31 — £475,000 • 3 bed • 2 bath • 1313 ft²
3 bedroom terraced house for sale in Oswald Road, Leamington Spa, CV32 — £650,000 • 3 bed • 1 bath • 1890 ft²
3 bedroom terraced house for sale in Rugby Road, Leamington Spa, CV32 — £450,000 • 3 bed • 1 bath • 1433 ft²
2 bedroom terraced house for sale in Ranelagh Terrace, Leamington Spa, CV31 — £350,000 • 2 bed • 1 bath • 953 ft²
2 bedroom terraced house for sale in 41 St. Georges Road, Leamington Spa, CV31 — £265,000 • 2 bed • 1 bath • 817 ft²






































































































































































