**Standout Features:**
- Semi-detached, post-war construction (1930-1949)
- 3 spacious bedrooms
- Modern shower room
- Off-street parking and a private rear garden
- Freehold tenure and chain-free sale
- Fast broadband and excellent mobile signal
- Close proximity to good-rated schools
**Concerns:**
- High crime rate in the area
- Area classified as very deprived
- Potential damp issues in the entrance porch
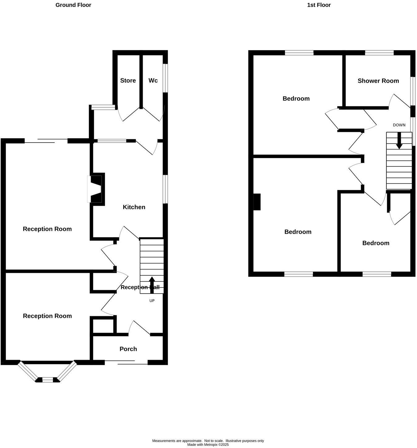
Discover this deceptively spacious semi-detached family home, boasting 926 sq. ft. of comfortable living across two floors. Perfect for families, this property features a welcoming entrance porch, a generous lounge for relaxation, a separate dining room for family gatherings, and a well-fitted kitchen with integrated appliances. Upstairs, you'll find three well-sized bedrooms served by a modern shower room.
The private enclosed rear garden offers a tranquil outdoor retreat, while off-street parking enhances convenience. Being chain-free, this home is ready for its next residents to make lasting memories. The area offers great amenities and families will appreciate the access to several good-rated primary schools within walking distance. Despite its many positives, be aware of the high crime rate in the neighborhood and the potential damp issues needing attention in the porch.
Don't miss the chance to turn this family home into your own haven—early viewing is strongly recommended!
3 bedroom semi-detached house for sale in Morrison Road, TIPTON, DY4 7PU, DY4 — £230,000 • 3 bed • 1 bath
3 bedroom semi-detached house for sale in Collis Street, Stourbridge, West Midlands, DY8 — £220,000 • 3 bed • 1 bath • 1034 ft²
3 bedroom semi-detached house for sale in Limes Road, Dudley, DY1 — £224,950 • 3 bed • 1 bath • 757 ft²
3 bedroom semi-detached house for sale in Ferndown Avenue, Sedgley, West Midlands, DY3 — £250,000 • 3 bed • 1 bath • 1051 ft²
3 bedroom semi-detached house for sale in Essex Avenue, Kingswinford, DY6 9RH, DY6 — £310,000 • 3 bed • 1 bath • 958 ft²
3 bedroom semi-detached house for sale in Silverthorne Avenue, Tipton, West Midlands, DY4 — £270,000 • 3 bed • 1 bath • 1346 ft²






















































