**Standout Features:**
- Charming detached two-storey cottage (Rowan Cottage)
- Set on approximately 2.49 acres of croft land with stunning countryside views
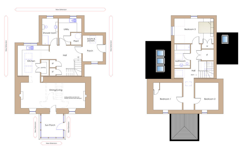
- Full planning permission granted for a sunroom and extension
- Traditional stone construction with three bedrooms, a lounge, kitchen/diner, and bathroom
- Solid fuel heating system
- Off-street parking and an outbuilding for added storage or workspace
- Large decrofted garden area, ideal for outdoor activities or self-sufficiency
**Potential Downsides:**
- Requires renovations
- EPC Rating: F 33, indicating possible energy efficiency improvements needed
- Average mobile signal and very slow broadband speeds may affect connectivity
**Summary:**
Rowan Cottage offers a unique opportunity to embrace a tranquil rural lifestyle in Arivegaig, a quaint crofting township near Acharacle. With its ample 2.49 acres of land, this property is perfect for families looking for space to grow, animal enthusiasts wanting land for grazing, or investors eyeing a renovation project with exciting potential. The property is currently in need of renovation, yet it comes with full planning permission to expand, allowing for customization to suit your vision and needs. Enjoy the serenity of the surrounding landscape, with a well-sized garden that offers a canvas for those with a green thumb. Explore the majestic Ardnamurchan Peninsula with nearby beaches and hiking trails! Priced competitively at £190,000, this property invites those ready to create their ideal home in a picturesque setting. Don’t miss the chance to make Rowan Cottage your personal sanctuary!
4 bedroom detached house for sale in Sealladh an Eilean, Acheteny, Kilchoan, PH36 4LG, PH36 — £470,000 • 4 bed • 3 bath • 1601 ft²
Land for sale in Croft Land at Loch Shiel View, Acharacle, Argyllshire, PH36 4JL, PH36 — £385,000 • 1 bed • 1 bath
2 bedroom detached house for sale in Tigh Liza, Arivegaig, Acharacle, Argyllshire, Highland, PH36 4LE, PH36 — £350,000 • 2 bed • 1 bath
4 bedroom detached house for sale in 7 Dalnabreck, Dalnabreck, Acharacle, PH36 4JX, PH36 — £580,000 • 4 bed • 5 bath • 3014 ft²
Plot for sale in Plot - 270M North West of Duneira Kentra, Acharacle, PH36 4LB, PH36 — £118,000 • 1 bed • 1 bath
4 bedroom semi-detached house for sale in Anasmara, Mingarry, Acharacle, PH36 4JX, PH36 — £350,000 • 4 bed • 3 bath • 1572 ft²


























































































































