**Standout Features:**
- Period Cotswold stone cottage with characterful details
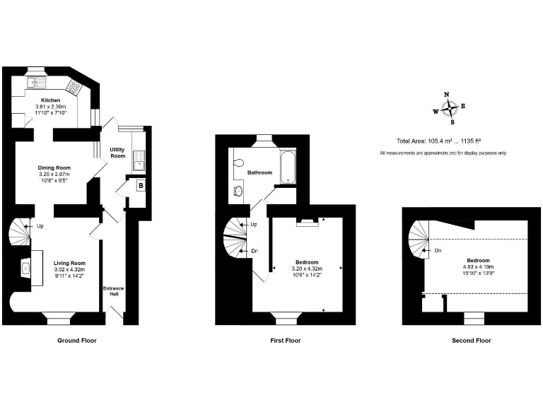
- 2 spacious double bedrooms; potential for renovation
- 2 reception rooms, including a rustic living room with exposed beams
- Secluded rear garden, perfect for private outdoor relaxation
- Chain-free sale, facilitating a smooth purchase process
- Prime location within easy walking distance to Tetbury town center
This quintessential Cotswold stone cottage is a hidden gem nestled in the historic town of Tetbury, offering over 1,135 sq. ft. of potential-filled living space. With its charming exposed beams and inviting stone fireplace, the rustic living room creates an immediate sense of warmth and comfort. Ideal for investors or families looking to make it their own, the layout features two good-sized double bedrooms and ample scope for renovation—the perfect opportunity to personalize and enhance this traditional home’s beauty.
Enjoy a seclusive rear garden, providing a peaceful retreat away from the hustle and bustle, while the bustling town center is just a short stroll away, ensuring convenient access to local amenities, shops, and schools. This property also boasts the invaluable benefit of being no onward chain, making it suited for quick and hassle-free transactions. Don’t miss the chance to own a piece of Tetbury’s history with significant potential for future enhancements—opportunities like this are not available for long!



















































