Quiet cul-de-sac home with garden and garage near schools and transport.
- Extended three-bedroom semi-detached house in cul-de-sac location
- Open-plan lounge and dining room, spacious reception for family life
- Integral garage with power and light; conversion potential subject to consents
- Private rear garden with patio and lawn; small, low-maintenance plot
- Off-street parking for multiple vehicles
- Single bathroom only; may be limiting for larger families
- Overall size modest at 592 sq ft — compact living space
- Nearby primary schools rated Good; some secondary schools have weaker ratings
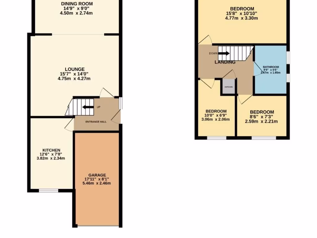
A well-located three-bedroom semi-detached home in a quiet cul-de-sac, offered freehold and priced at £395,000. The ground floor is extended to provide a generous open-plan lounge and dining area ideal for everyday family life and entertaining. The kitchen and bathroom are well presented and the property benefits from double glazing throughout.
Outside, there is off-street parking, an integral garage with power and light (potential to convert subject to planning consents), and a private rear garden with patio and lawn. The plot is small but low-maintenance, and the house sits in a very affluent area with fast broadband, excellent mobile signal and low local crime.
This home will suit families seeking good primary schools nearby and convenient transport links. Note the property is modest in overall size (592 sq ft) and has one bathroom; further accommodation improvements would require planning approval for garage conversion. Some local secondary schools have mixed Ofsted ratings, so buyers should check catchment priorities if secondary provision is a key factor.
3 bedroom detached house for sale in Foxfield Drive, Stanford-le-hope, SS17 — £500,000 • 3 bed • 2 bath • 1700 ft²
3 bedroom semi-detached house for sale in Northlands Close, Stanford-Le-Hope, SS17 — £350,000 • 3 bed • 1 bath • 818 ft²
3 bedroom semi-detached house for sale in The Sorrells, Stanford-Le-Hope, SS17 — £400,000 • 3 bed • 2 bath
3 bedroom semi-detached house for sale in Southend Road, Stanford-Le-Hope, Essex, SS17 — £375,000 • 3 bed • 1 bath • 834 ft²
3 bedroom terraced house for sale in Burton Close, Corringham, SS17 — £325,000 • 3 bed • 1 bath • 786 ft²
5 bedroom semi-detached house for sale in Northlands Close, Stanford-Le-Hope, SS17 — £500,000 • 5 bed • 4 bath


































































