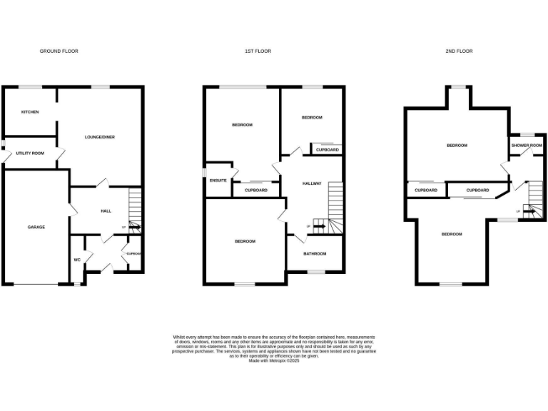
Four bedrooms, garage and private garden close to local amenities.
Semi-detached three-storey family house, around 1,368 sqft
A spacious, well-presented semi-detached family home on Glasgow Road offering flexible accommodation across three floors. The property benefits from a large open-plan kitchen/lounge/dining area, a generous principal living room, four good-sized bedrooms and three bathrooms — useful for busy family routines or home working. Practical features include double glazing, gas central heating, an integral garage and private driveway for off-street parking.
Rooms are finished in neutral tones with hardwood flooring in principal reception areas, creating a bright, low-maintenance interior. The rear garden is well maintained and private, suitable for children’s play or outdoor dining. The layout especially suits families who need separate living and sleeping zones plus occasional guest or study space on the top floor.
Notable practical points: the kitchen footprint is modest compared with the dining area, so buyers wanting a very large fitted kitchen may consider alteration. The wider neighbourhood shows pockets of deprivation, which may affect future resale in parts; there is no flood risk. Ownership is freehold and broadband and mobile signals are strong, supporting remote working and streaming.
Overall, this is a comfortable, move-in-ready family house with good parking and garden space in a desirable Perth setting. It will appeal to families wanting four bedrooms and separate living zones, or investors seeking a sizeable rental property in a popular location.
4 bedroom house for sale in Glamis Place, Perth, PH2 — £227,950 • 4 bed • 1 bath • 1120 ft²
3 bedroom semi-detached house for sale in Glasgow Road, Perth, PH2 — £295,000 • 3 bed • 1 bath • 1313 ft²
4 bedroom house for sale in Buchan Drive, Perth, PH1 — £289,995 • 4 bed • 2 bath • 890 ft²
4 bedroom detached house for sale in 5 Mailer Way, Perth, PH2 0GE, PH2 — £350,000 • 4 bed • 2 bath • 1444 ft²
4 bedroom house for sale in Errochty Court, Perth, PH1 — £272,950 • 4 bed • 3 bath • 1098 ft²
3 bedroom semi-detached house for sale in Unity Terrace, Perth, PH1 — £240,000 • 3 bed • 1 bath • 1391 ft²






















































































































































































