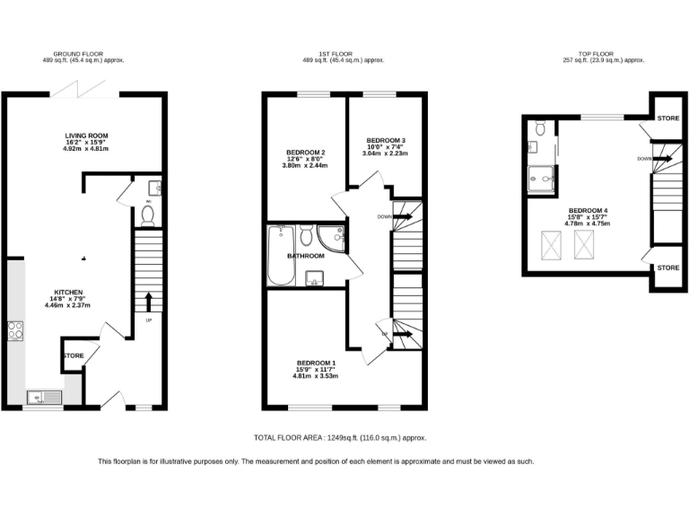
### Key Features:
- 4 spacious bedrooms across 3 levels
- Constructed in 2021 with a 10-year building guarantee
- Open plan living area with access to a landscaped rear garden
- 2 modern bathrooms, including an ensuite
- Energy-efficient with underfloor heating and double glazing
- Off-street parking and easy access to local schools and amenities
### Summary:
Discover this stunning 4-bedroom mid-terrace home, thoughtfully crafted in 2021, perfect for growing families looking for space and comfort in a friendly suburban setting. The well-appointed open plan living area, with contemporary design elements and bi-fold doors, seamlessly connects to a charming rear garden, ideal for outdoor relaxing and entertaining.
Spread over three levels, the home boasts two modern bathrooms, including a serene master suite complete with an ensuite on the top floor. Energy efficiency is a highlight, thanks to underfloor heating, double glazing, and cavity wall insulation, ensuring a cozy environment year-round.
Located in the peaceful village of Redbourn, you’ll be near quality schools, convenient bus routes, and nearby shops, all while retaining easy access to major motorways and rail links. This home isn’t just a living space; it's an opportunity to create cherished family memories that you won’t want to miss. Act quickly to secure your future in this desirable property!
4 bedroom terraced house for sale in Lybury Lane, Redbourn, St. Albans, AL3 — £500,000 • 4 bed • 1 bath • 1185 ft²
4 bedroom link detached house for sale in The Park, Redbourn, Hertfordshire, AL3 — £775,000 • 4 bed • 2 bath • 1872 ft²
4 bedroom semi-detached house for sale in Hemel Hempstead Road, Redbourn, AL3 — £700,000 • 4 bed • 2 bath • 1391 ft²
3 bedroom end of terrace house for sale in Lybury Lane, Redbourn, St. Albans, AL3 — £487,500 • 3 bed • 1 bath • 970 ft²
4 bedroom detached house for sale in Lybury Lane, Redbourn, St. Albans, AL3 — £1,095,000 • 4 bed • 2 bath • 2090 ft²
4 bedroom semi-detached house for sale in Bettespol Meadows, Redbourn, St. Albans, AL3 — £885,000 • 4 bed • 2 bath • 1532 ft²






















































































