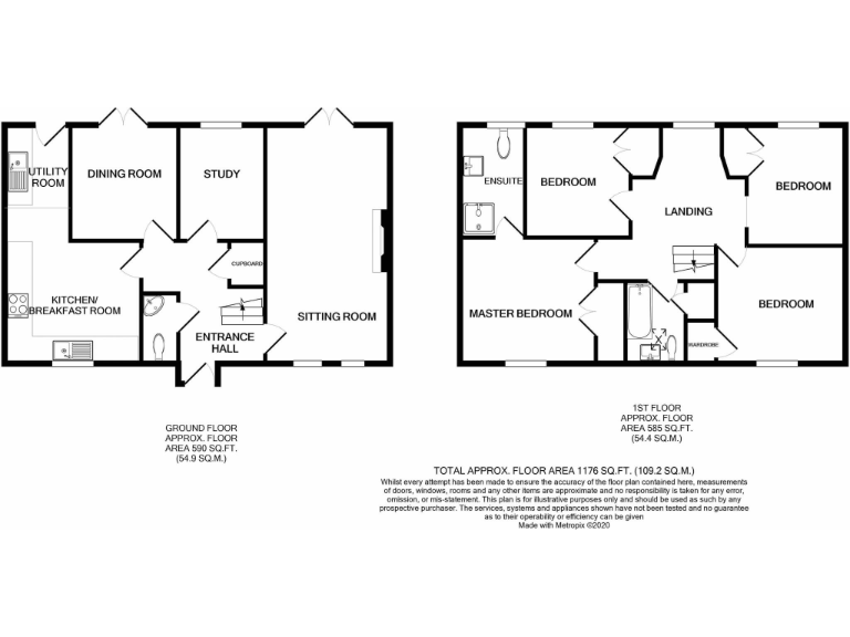
**Standout Features:**
- Four spacious bedrooms and two modern bathrooms
- Generously-sized living room and separate dining room with garden access
- Additional reception room ideal for an office/study
- Enclosed rear garden, perfect for family activities
- Off-street parking with two allocated spaces
- Recent renovations and high standard finish throughout
- Freehold tenure, promoting long-term security
**Notable Concerns:**
- Average-sized garden may require upkeep
- Average crime level in the area
Welcome to this beautifully presented four-bedroom semi-detached family home in a tranquil suburban setting. With its charming modern cottage stone exterior and well-maintained interiors, this property is a perfect blend of style and practicality. Enjoy spacious living with three reception rooms, including a bright living area, a separate dining room, and a versatile study, all thoughtfully designed for family gatherings and everyday living. The contemporary fitted kitchen, a utility room, and a downstairs cloakroom enhance convenience, while the upstairs boasts a luxurious master bedroom with an en-suite, plus three additional bedrooms and a sleek family bathroom.
Step outside to the charming enclosed rear garden, providing a safe space for children to play or for hosting summer barbecues, while off-street parking ensures your vehicles are secure. Located in a desirable area with good local amenities and highly-rated schools—such as the outstanding Neroche Primary School—this property is ideal for families. Don't miss out on the chance to own a modern home filled with potential; schedule a viewing today to truly appreciate everything it has to offer!







































































































