Well-located two-bedroom flat with secure parking and communal gardens.
Chain-free first-floor apartment with lift access
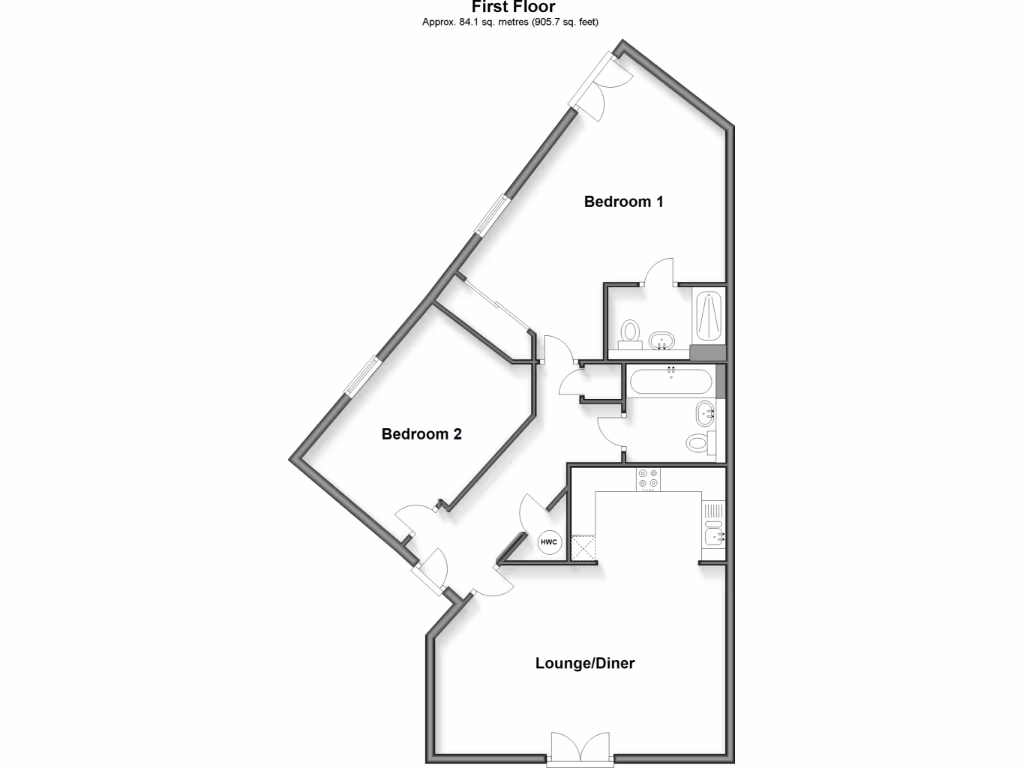
A spacious first-floor apartment in central Canterbury, offered chain-free and ready to move into. Large lounge/diner with balcony doors overlooks well-maintained communal gardens, and the flat includes a secure underground parking space and lift access for convenience. The 883 sq ft layout provides two double bedrooms, an en suite, and a separate bathroom — good for sharers or a small family.
Important practical considerations are clear and factual: the lease has around 55 years remaining and the high ground rent (£2,800 pa) may restrict mortgage options; some lenders could refuse to lend. The property is electrically heated with room heaters rather than gas central heating, broadband speeds are slow, and the area records a very high crime rate. There is also a high local flood risk to be aware of.
For buyers who can manage the lease/ground-rent issues or who plan to buy outright, this apartment offers central convenience, communal outdoor space and secure parking — features that suit students, professionals and investors seeking a lettable, well-located flat. Consider budget for potential lease extension, energy upgrades and improved broadband if long-term ownership is intended.
2 bedroom flat for sale in Tannery Square, Canterbury, Kent, CT1 — £250,000 • 2 bed • 2 bath • 724 ft²
2 bedroom flat for sale in St. Mary's Street, Canterbury, Kent, CT1 — £250,000 • 2 bed • 2 bath • 700 ft²
2 bedroom flat for sale in Rochester Avenue, Canterbury, Kent, CT1 — £230,000 • 2 bed • 1 bath • 657 ft²
2 bedroom flat for sale in Summer Hill, Harbledown, Canterbury, Kent, CT2 — £245,000 • 2 bed • 1 bath • 732 ft²
3 bedroom apartment for sale in Westwood Drive, Canterbury, Kent, CT2 — £325,000 • 3 bed • 2 bath • 780 ft²
2 bedroom flat for sale in Great Stour Mews, Canterbury, Kent, CT1 — £230,000 • 2 bed • 2 bath • 652 ft²


































