Ideal for professionals seeking concierge living with pool and gym near the City.
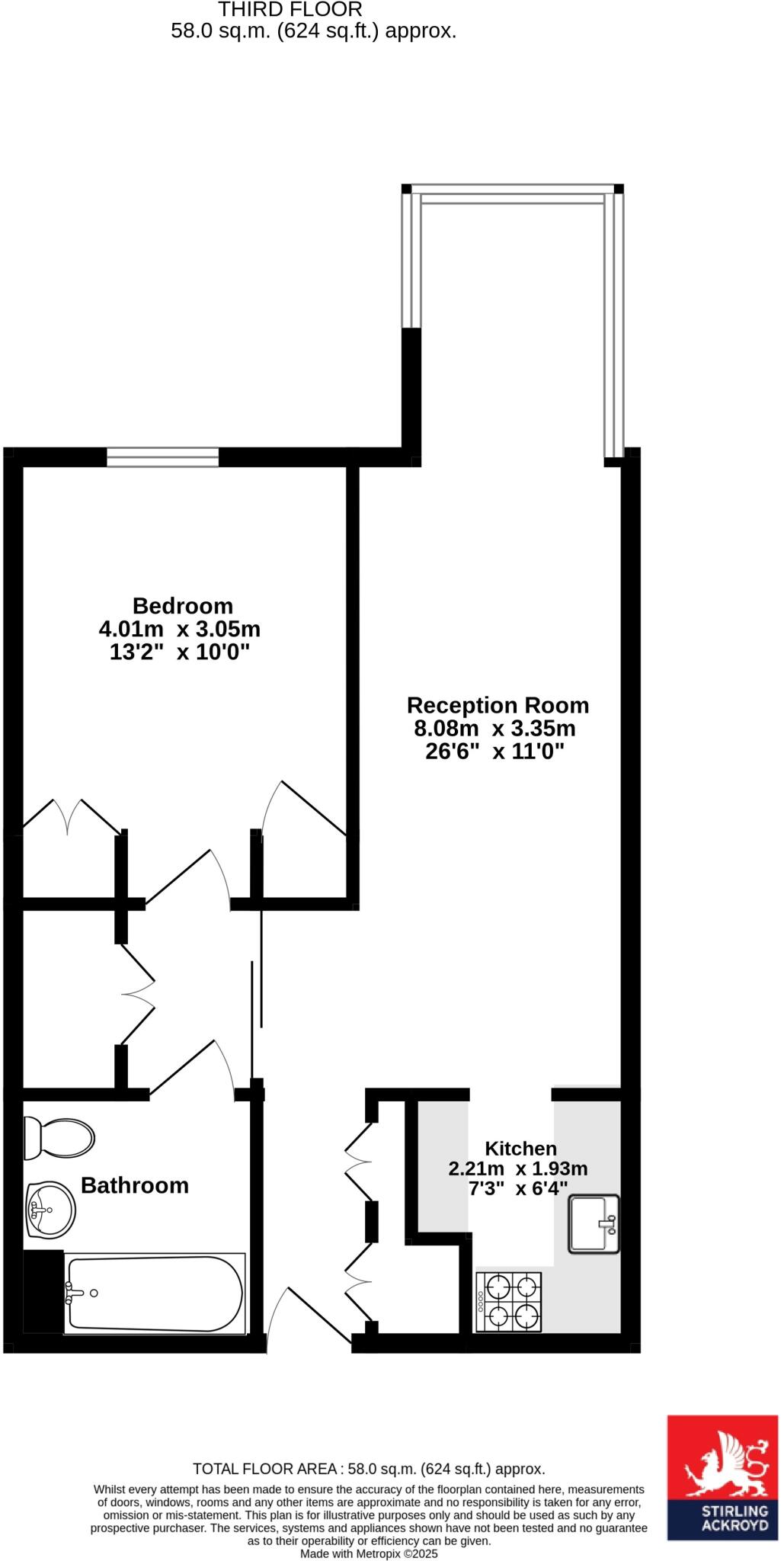
Third-floor apartment with lift access and winter garden balcony
Approximately 620 sq ft of open-plan living space
Residents' pool, spa, gym, cinema and 24-hour concierge
Long lease (987 years) — secure tenure
Service charge £5,200 per year (above average)
Ground rent £599 per year (expensive)
No private garden; communal landscaping only
Close to City, Shoreditch and strong public transport links
Set on the third floor of an award-winning development, this well-proportioned one-bedroom apartment offers about 620 sq ft of contemporary living close to the City and Shoreditch. Large corner glazing and a winter garden balcony bring excellent natural light and urban views into an open-plan reception and stylish fitted kitchen with integrated appliances.
Residents benefit from on-site leisure facilities including a pool, spa, gym, private screening room and 24-hour concierge, plus two acres of landscaped grounds and nearby transport links. Broadband speeds are fast and mobile signal is excellent, making it practical for home-working professionals.
Practical points to note: the property is leasehold with a very long remaining term (987 years), but the service charge (£5,200 pa) and ground rent (£599 pa) are above average. There is no private garden and council tax is higher than average. The apartment is well finished but suits buyers seeking low-maintenance, communal-living rather than a family house.
Overall, this apartment will appeal to city professionals or investors looking for high-spec facilities and central convenience. It delivers turn-key modern living with clear running costs to consider alongside the long lease and communal upkeep.
1 bedroom apartment for sale in Wiverton Tower, Aldgate Place, E1 — £500,000 • 1 bed • 1 bath • 545 ft²
1 bedroom flat for sale in New Drum Street, Aldgate, London, E1 — £565,000 • 1 bed • 1 bath • 538 ft²
1 bedroom apartment for sale in Altitude Point, 71 Alie Street, London, E1 — £525,000 • 1 bed • 1 bath • 674 ft²
1 bedroom apartment for sale in Pimento House, Goodmans Fields, E1 — £550,000 • 1 bed • 1 bath • 539 ft²
1 bedroom flat for sale in Leman Street, Goodmans Fields, Aldgate, London, E1 — £650,000 • 1 bed • 1 bath • 543 ft²
3 bedroom flat for sale in Altitude, 1 Alie Street, 71 Alie Street, Aldgate, London, E1 8NF, E1 — £850,000 • 3 bed • 2 bath • 1061 ft²


















































































