Newly renovated three-bed house with garden, garage and beach access ideal for families.
3 bedroom detached on generous corner plot close to North Sands Beach|Newly renovated interior with modern kitchen and bright living space|Wraparound gardens plus private backyard with wooden hot tub|Single garage, garden store and tarmac driveway with ample parking|Electric storage heaters — higher running costs than gas heating|One family bathroom only for three bedrooms|Double glazing fitted (install date unknown); mid-1950s construction|Council tax above average; broadband speeds average
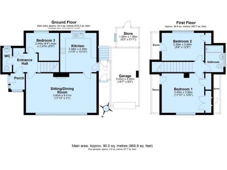
Set on a generous corner plot in peaceful Beadon, this newly renovated three-bedroom detached house is an appealing option for families seeking a seaside-adjacent home. The ground floor flows from a modern kitchen into a bright sitting/dining room with a large picture window and feature fireplace, plus an extra reception room that could serve as a home office or guest/third bedroom. The house is presented to a high standard throughout and benefits from double glazing (install date unknown).
Outside, wraparound, well-kept gardens and a private backyard with a wooden hot tub create useful outdoor living space, while a tarmac driveway provides ample parking and leads to the attached single garage and garden store. The property sits within easy walking distance of North Sands Beach and Salcombe town centre amenities, with excellent mobile signal and several well-rated primary and secondary schools nearby.
Practical points to consider: the home uses electric storage heaters, which can be more costly than mains gas, and there is only one family bathroom for three bedrooms. Broadband speeds are average in the area and council tax is above average. Constructed in the mid-20th century, the property will suit buyers wanting a nicely finished home now, with some scope to personalise or upgrade services over time.
3 bedroom detached house for sale in Beadon Road, Salcombe, TQ8 — £695,000 • 3 bed • 2 bath • 1405 ft²
3 bedroom detached house for sale in Beadon Drive, Salcombe, TQ8 — £595,000 • 3 bed • 2 bath • 1156 ft²
5 bedroom detached house for sale in Longfield Drive, Salcombe, TQ8 — £775,000 • 5 bed • 3 bath • 2180 ft²
4 bedroom detached house for sale in Frobisher Lane, Salcombe, Devon, TQ8 — £2,500,000 • 4 bed • 3 bath • 3512 ft²
4 bedroom detached house for sale in Loring Road, Salcombe, TQ8 — £995,000 • 4 bed • 1 bath • 1974 ft²
2 bedroom detached bungalow for sale in Park Rise, Salcombe, TQ8 — £450,000 • 2 bed • 1 bath • 1014 ft²


















































