High-spec rural barn with mezzanine, parking and private garden.
High-spec two-bedroom barn conversion with mezzanine
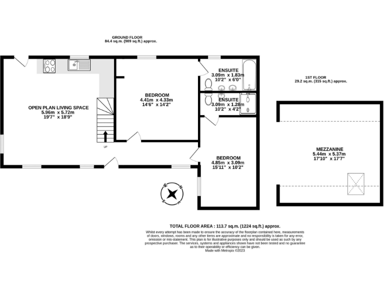
Set well back in a quiet village courtyard, this two-bedroom barn conversion offers more than first impressions suggest. Restored to a high specification, the property combines character features — exposed stone, timber and vaulted beams — with modern comforts including a newly fitted kitchen, two en suite bathrooms and an air source heat pump (EPC C).
The principal living space is an impressive open-plan room with a substantial mezzanine, creating flexible accommodation suitable for a home office, guest space or hobby area. Both double bedrooms sit with adjacent en suites, making the layout especially convenient for two occupants or regular visitors.
Outdoors there is private paved patio, raised planting beds and mature hedging that give a rural outlook and privacy; off-street parking is included and the sale is offered chain-free. Note that the building is Grade II listed, which preserves its character but will restrict alterations and could complicate works or extensions.
This is well suited to buyers seeking a low-crime, very affluent rural setting with good broadband, strong local schools and a countryside lifestyle. Buyers who need extensive outdoor space or who plan major structural changes should consider the listed status and communal barn setting before viewing.
4 bedroom barn conversion for sale in Brook Hall Farm, North Bradley, North Bradley, Near Trowbridge, BA14 — £550,000 • 4 bed • 3 bath • 1834 ft²
3 bedroom barn conversion for sale in Courtyard Barns, North Bradley, North Bradley, Nr Trowbridge, BA14 — £415,000 • 3 bed • 2 bath • 1288 ft²
1 bedroom barn conversion for sale in Stratton On Fosse, Rural, BA3 — £255,000 • 1 bed • 1 bath • 688 ft²
3 bedroom end of terrace house for sale in West Farm Barns, Knook, Knook, BA12 — £375,000 • 3 bed • 2 bath • 1091 ft²
3 bedroom terraced house for sale in Shorts Green Lane, Motcombe, SP7 — £425,000 • 3 bed • 3 bath • 1779 ft²
3 bedroom detached house for sale in Newbury, Frome, Somerset, BA11 — £835,000 • 3 bed • 3 bath • 1591 ft²


































































