Flexible, connected space ideal for SMEs or long-term investors.
- New-build freehold light industrial unit, 2,842 sq ft (expandable)
- Potential 5,100 sq ft with mezzanine, subject to planning
- Guide price £726,500 plus VAT (priced on 2,842 sq ft)
- 10-year construction warranty and secure gated site
- Ultra-fast broadband and excellent mobile signal throughout
- Basic fit-out: roller shutter, lighting, kitchenette, WC
- Parking: one reserved space per 250 sq ft on-site
- Completion expected April 2026; planning and timing risks
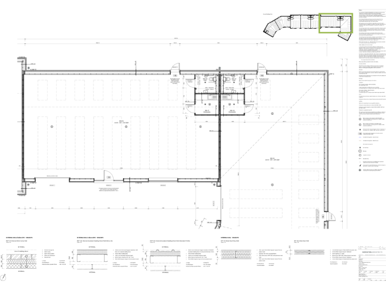
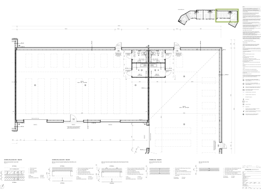
Unit 9 is a new-build light industrial freehold in Apollo Business Park, offered either as 2,842 sq ft (guide price) or expandable to about 5,100 sq ft with a mezzanine subject to planning. The unit is finished to a basic fit-out with insulated electric roller shutter, small power and lighting, painted walls, private WC and kitchenette — ready for quick occupation or further tenant fit-out. A 10-year construction warranty and on-site timed security gate give reassurance for owner-occupiers and investors alike.
Positioned just off the A6 trunk road, the park delivers straightforward regional distribution and commuting links, plus ultra-fast broadband and excellent mobile signal for tech or hybrid uses. The site sits 16 miles from the proposed Tempsford growth zone, offering potential long-term demand upside for logistics, light manufacturing or SME office/hybrid occupiers.
Practical points to note: the advertised guide price is based on the 2,842 sq ft unit and is offered plus VAT; mezzanine installation and any first-floor expansion require planning consent. Completion is expected April 2026, so buyers should factor in build timing and any pre-let or fit-out schedules. Parking is provided at one reserved space per 250 sq ft, and the rural village setting may limit immediate local labour supply compared with urban centres.
Overall, Unit 9 suits owner-occupiers and investors seeking a modern, flexible light industrial/commercial unit with growth-zone proximity, strong connectivity and a clear specification base to tailor further as required.
Light industrial facility for sale in Unit 10 or 11, Apollo Business Park at Souldrop Bedfordshire MK44 1HJ", MK44 — £390,000 • 1 bed • 1 bath • 2400 ft²
Light industrial facility for sale in Unit 4, Apollo Business Park at Souldrop Bedfordshire MK44 1HJ", MK44 — £457,500 • 1 bed • 1 bath • 3255 ft²
Light industrial facility for sale in Unit 5,6 or 7, Apollo Business Park at Souldrop Bedfordshire MK44 1HJ", MK44 — £403,750 • 1 bed • 1 bath • 2400 ft²
Light industrial facility for sale in Unit 8 Apollo Business Park at Souldrop Bedfordshire MK44 1HJ", MK44 — £659,250 • 1 bed • 1 bath • 4200 ft²
Warehouse for sale in Apollo Business Park, Stocking Lane, Souldrop, Bedford, Bedfordshire, MK44 1HJ, MK44 — POA • 1 bed • 1 bath • 3000 ft²
Warehouse for sale in Unit 3 Ampthill Business Park, Station Road, Ampthill, Bedford, Bedfordshire, MK45 — £1,350,000 • 1 bed • 1 bath • 9192 ft²


































