ME9 8JR - 3 bedroom house for sale in The Street, Borden, Sittingbour…

View on Property Piper

3 bedroom house for sale in The Street, Borden, Sittingbourne, Kent, ME9

Summary - STREET FARM HOUSE THE STREET BORDEN SITTINGBOURNE ME9 8JR

3 bed 2 bath House

Historic Tudor house with half-acre gardens and versatile barn, near Sittingbourne.
- Grade II Listed Tudor house with significant period features
- Three double bedrooms, master with en-suite shower room
- Gardens just over 0.5 acre, cottage-style beds and lawned areas
- Barn 9m x 4m with water connected; versatile recreational potential
- Off-street parking and convenient access to A2, M2 and Sittingbourne
- Listed status will restrict alterations and complicate repairs
- Slow broadband speeds; may affect home working reliability
- Local recorded crime is above average; consider security measures
Street Farm House is a Grade II Listed Tudor-era village house offering abundant period character and versatile living space for a family seeking a distinctive country home. Mellow exposed beams, ancient panelling and ornate inglenook fireplaces create immediate historic charm across three reception rooms and three double bedrooms, including a master with en-suite.

Set on just over half an acre, the gardens are a major asset: cottage-style beds and lawns to three sides, a rose garden and an outdoor entertaining area. A useful barn (approx. 9m x 4m) with water connected sits on the plot and could serve as studio, workshop or recreational space. Off-street parking and convenient road links to Sittingbourne, the A2 and M2 add practical appeal.

Important considerations: the Grade II Listed status will restrict alterations and may complicate repairs or extensions. Broadband speeds are slow, and local recorded crime is above average — factors to weigh for remote working or security concerns. The house’s historic fabric will require sympathetic maintenance, and some areas may need updating to modern standards.

This property suits buyers who value history, spacious gardens and rural village life, and who accept the responsibilities of caring for a listed building. With thoughtful investment it offers a rare combination of period features, substantial outdoor space and adaptable outbuilding potential.

Property Details

Brochure Descriptions

Image Descriptions

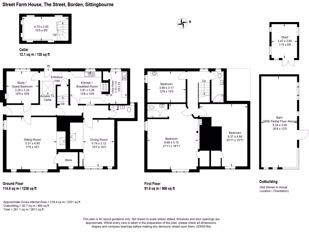
Floorplan Description

Rooms

Textual Property Features

Target Audience

AI Tags

Detected Visual Features

Nearby Schools

Nearest Bars And Restaurants

,,,,}

Nearest General Shops

,,}

Nearest Grocery shops

,,}

Nearest Supermarkets

,,}

Nearest Religious buildings

,,}

Nearest Medical buildings

,,,}

Nearest Airports

,}

Nearest Leisure Facilities

,,,,}

Nearest Tourist attractions

,,}

Nearest Train stations

,,,,}

Nearest Bus stations and stops

,,,,}

Nearest Hotels

,,}

Tags

Local Market Stats

Similar Properties

Meta

High Res Images

Compatible Images

Low res Images

Thumbnails

Raw Images

High Res Floorplan Images

Compatible Floorplan Images

Low res Floorplan Images

FloorplanImages Thumbnail

Raw Floorplan Images